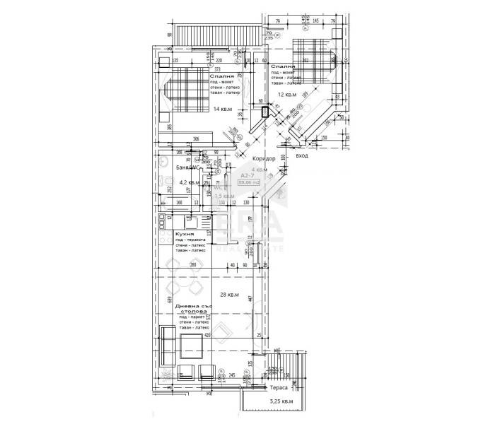
ЕРА Варна Тренд предлага за продажба тристаен апартамент с голяма дневна, в новопостроена сграда пред Акт 16. Имотът е със застроена площ 89,06 кв.м (98,72 кв.м с общите части), разположен на втори етаж от общо 5 етажа. Състои се от просторна слънчева дневна с кухненски бокс (28 кв.м) и излаз на тераса (5,25 кв.м), две спални (14 кв.м и 12 кв.м) с излаз на обща за двете стаи тераса, коридор (4 кв.м), баня с тоалетна (4,2 кв.м), самостоятелна тоалетна (1,5 кв.м) и прилежащо мазе.
Жилището се продава необзаведено, завършено до степен БДС, с поставена ПВЦ дограма. Отоплението е с електричество. Има домофонна система.
Тристайният апартамент се намира в началото на кв. Аспарухово, в пететажна тухлена сграда с асансьор, на етап на строителство издаден Акт 15. Разрешение за ползване (Акт 16) се очаква в началото на 2027 г. Има възможност за допълнително закупуване на открито паркомясто на цена 6 000 евро, закрито паркомясто на цена 12 000 евро или гараж на цена 19 000 евро. В сградата се предлагат и други тристайни жилища на по-високите етажи. Достъпът е бърз и удобен, по хубав път от входа на кв. Аспарухово.
Оферта 0222194







