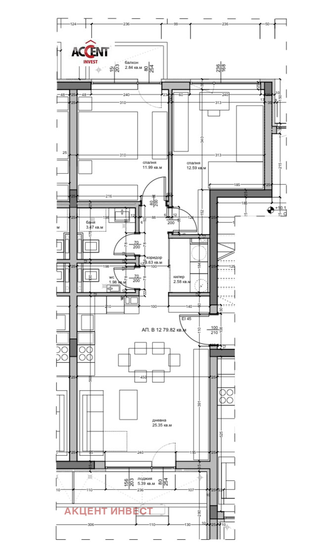
код 21607 НОВ ТРИСТАЕН АПАРТАМЕНТ ВЪЗРАЖДАНЕ 1 Предлагаме Ви за продажба Тристаен апартамент в нов жилищен комплекс, до Парка в кв. Възраждане, гр.Варна. Жилището е с изложение Юг-Север и се намира на четвърти жилищен етаж (4/6). На застроена чиста площ от 80 кв.м. са разположени: входно антре/коридор, дневна с кухня, килер, баня с тоалет, тоалет, две спални, две тераси. Площ на апартамента с общи части 92,00 кв.м. Довършителни работи: БДС. Външно паркомясто включено в цената! ТЕЦ от Dalkia.
Комплексът се състои от 4 самостоятелни блока - Пролет, Лято, Есен и Зима в парцел от почти 10 500 кв.м. статут на АПАРТАМЕНТ! Апартаментът се предлага в степен на завършеност по БДС. Акт 16 от 2022 г.



