Тристаен апартамент с усещане за къща със самостоятелен двор с площ от 163 кв.м.
Макаса консулт' ЕООД има удоволствието да Ви представи най-новото бижу на южна София, малка спретната сграда на предпочитана от много софиянци локация, а именно кв. Бъкстон - Павлово. Сградата се намира в близост до бул. Околовръстен път, с бърз достъп и до пл. 'Знаме на мира' , където има всичко необходимо за едно домакинство. Аптека, няколко хранителни магазина, плод и зеленчук, млекарница 'Добрев', ресторанти, денонощни магазини, и много други. В непосредствена близост до бъдещата сграда има Спиди, Еконт, DHL, Мини март, детски площадки и редица други удобства.
Сградата ще бъде малка със само 24 бр. апартаменти, гаражи и паркоместа на кота 0.00м., както и в сутерена. Цялото строителство ще бъде изпълнено по всички европейски стандарти за енергийно и топлоефективност. С висок клас дограма, блиндирани входни врати, разводки за климатици. Отоплението е предвидено на газ, със самостоятелни газови котли във всеки апартамент. При избор на имот и при желание от страна на клиента може да бъде изградено и подово отопление. На покрива на сградата ще бъдат монтирани слънчеви панели за захранване на общите части на кооперацията. В кооперацията има избор от двустайни и тристайни имоти на различни етажи, както и от гаражи и ПМ, на кота 0.00м. и сутеренно ниво.
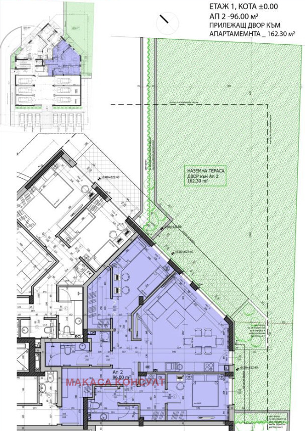
Предлаганият имот е АП. 2, находящ се н партерен етаж със със самостоятелен двор с площ 162 кв.м, РЗП 119 кв.м, и ЗП 96 кв.м.
АКТ 16 е предвиден в срок от 24 месеца, след стартирането на обекта, което се очаква в началато на март месец 2026г.
Стандартната схема на плащане е следната:
1 ва вноска 30 % (при сключване на предварителен договор)
2 ра вноска 20 % (при издаване на Акт 14)
3 та вноска 20 % (след монтаж на дограма)
4 та вноска 20 % (при издаване на Акт 15)
5 та вноска 10 % (при издаване на разрешение за ползване)
За повече информация и организиране на оглади сме на среща.
Очакваме Ви!







