Vivahome предлага за продажба голям ТРИСТАЕН АПАРТАМЕНТ в новострояща се бутикова жилищна сграда в кв. Виница !
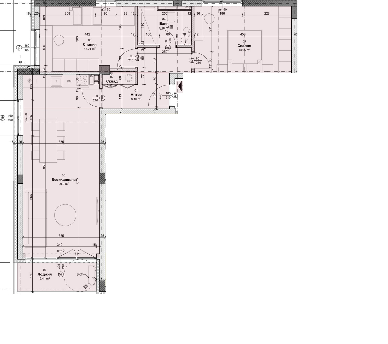
Имотът е разположен на 2-ри етаж и е със следното разпределение:
--> Антре/коридор - 8.16 м2
--> Всекидневна с кухня - 29.90 м2
--> Спалня - 13.21 м2
--> Втора спалня - 13.95 м2
--> Тераса - 5.44 м2
--> Баня - 4.18 м2
--> Килер - 0.87 м2
✅Югоизточно изложение и страхотна морска гледка !
✅Удобно и функционално разпределение !
✅Просторни и светли стаи !
✅Статут апартамент !
✅Прилежащо мазе !
✅Възможност за покупка на паркомясто !
✅Разсрочено плащане !
✅Подходящ за покупка с банков кредит !
Имотът се намира в новострояща се бутикова жилищна сграда, без такса поддръжка в кв. Виница, гр. Варна, която се отличава със:
✅Страхотно местоположение - във високата част на кв. Виница, едно от най-тихите кътчета в квартала. Сградата е заобиколена от зеленина, природа и модерни нови сгради !
✅Луксозно изпълнение. Качествено строителство и комфорт. Гарантирано топло и шумо изолирани апартаменти. Прозоречните системи са изработени от профили на световния лидер Cortizo. Най-доброто от най-добрите !
✅В непосредствена близост са бул. 'Цар Борис III-ти', центъра на квартала и булевард 'Св. св. Константин и Елена', който осигурява бърз достъп до едноименния курорт !
Цена - 136 000 EUR
За повече информация и огледи: Николай Радев, 0877779462
Съдействаме за отпускане на банков кредит - обадете ни се за консултация !
VIVAHOME - комплексни решения в сферата на недвижимите имоти !
Разгледайте и другите ни предложения на www.vivahome.bg







