ВИП ИМОТИ БГ предлага на Вашето внимание екслузивен апартамент! Светъл, стилен и обновен, само на 3 минути пеша от метростанция Опълченска и 5 минути от Mall of Sofia.
Основна информация:
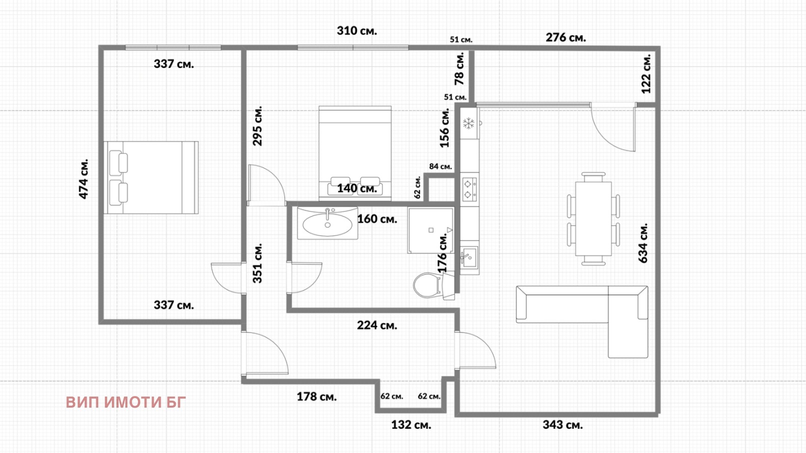
Обекта е с площ около 79 кв.м. с общи части. Жилищна площ по стар нотариален акт 64 кв.м. Разполага с мазе (4 кв.м) и таванско помещение (6 кв.м). Апартаментът се намира на 6-ти етаж, предпоследен с асансьор, без шум от булеварда, слънчево източно изложение на всички помещения с гледка към Витоша, Александър Невски и Парламента. Съставлява три основни луксозно обзаведени помещения, без кухненско оборудване и шкафове: хол с вътрешен балкон; голяма спалня; кухня (евентуално детска стая); баня с тоалетна и просторен коридор.
ВНИМАНИЕ! Последните три снимки са ПРИМЕРНА 3D визоализация на възможността, този двустаен апартамент да бъде превърнат в тристаен. В тази връзка е и втората примерна схема, която е без размери.
Всички други снимки, видеото и първата схема с размерите са реални.
Конструктивно-архитектурни позитиви 2=3:
Поради спецификата на строителството и разположението на ВиК инсталацията, този двустаен (по документи) апартамент, който лесно, бързо и евтино може да бъде преустроен в тристаен! За целта помещението, предвидено за кухня може да бъде превърнато в детска стая, а в хола да се добави кухненски бос като пожелание може да се усвои балкона към всекидневния модул.
Апартаментът е след висококачествен основен ремонт, включващ:
Естествен дървен паркет в спалнята и просторния хол
Испански микроцимент от висок клас в коридора и кухнята
Изцяло подменени електро и ВИК инсталации
Предвидено отопление на климатици
Дизайнерско висок клас осветление
Ръчно изработени мебели
Продава се обзаведен без гардероб, кухненско оборудване и шкафове
Екстри, свързани с най-важното ЛОКАЦИЯТА:
Сградата разполага с частен свободен паркинг, използван само от живущите без синя зона и без ангажимент за намиране на място.
Локацията е изключително удобна:
3 минути пеша до метростанция Опълченска
5 минути пеша до Mall of Sofia
в близост до училища, супермаркети, спирки на градски транспорт и заведения
до имота е парка на църквата Свети Никола с детска площадка
- от балкона има невероятна гледка към Витоша, СУ, Александър Невски и Парламента.

