БИЛДИНГ БОКС предлага за продажба тристаен апартамент в сърцето на столицата ул. Братя Миладинови', до ул. 'Позитано', в непосредствена близост до църквата Св. Неделя , бул. Витоша и метростанция Сердика .
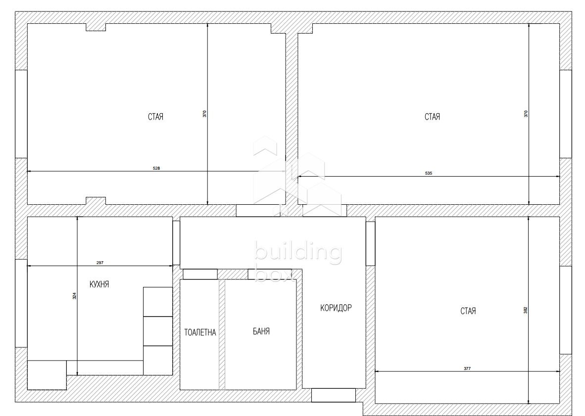
Имотът е със застроена площ от 92 кв.м. и има следното разпределение: входно антре, две просторни стаи с източно изложение към ул. Братя Миладинови , самостоятелна кухня и още една стая с гледка вътрешен двор със западно изложение, баня с тоалетна, както и отделна тоалетна.
Жилището е изключително светло, с добри отстояния от съседните сгради и отопление на ТЕЦ.
Апартаментът се намира на 1-ви етаж от общо 5.
Към имота има мазе с площ от 9 кв.м.
Предлага се необзаведен, в добре запазено състояние, с възможност за съвременно освежаване.
Локацията е изключително комуникативна и престижна на пешеходно разстояние от бул. Витоша , църквата Св. Неделя , Съдебната палата, както и от метростанция Сердика (червена и синя линия). В района се намират елитни училища, детски градини, магазини, заведения, театри и културни забележителности.
Сградата попада в зелена зона за паркиране, като около имота винаги има свободни места.
БИЛДИНГ БОКС предлага безплатна консултация и съдействие при кредитиране за финансиране на покупката на Вашия имот.
Оферта 26755



