Референтен номер: 3393.
ПРОСТОРЕН ТРИСТАЕН АПАРТАМЕНТ С АКТ 14 В КВ. ТРАКИЯ!
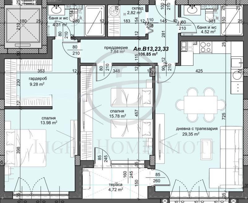
Предлагаме Ви да закупите просторен ТРИСТАЕН апартамент в новоизграждащ се жилищен комплекс с акт 14.
Основни характеристики на имота :
- Площ: 127 кв.м.
- Разпределение: Просторен хол с кухненски бокс, две големи спални, едната от който с дрешник 10кв.м , две бани с тоалетни, входно антре, тераса и килер.
- Изложение: Югозапад
- Етажност: 6ми етаж от 10 (асансьор)
- Вид строителство: тухла 2026 г.
- Паркиране: Възможност за закупуване на паркомясто
Състояние на имота: Жилището ще се издава на степен на завършеност шпакловка и замазка, ВиК до тапа и Ел инсталация до ключ. Това Ви дава чудесната възможност да го обзаведете и превърнете в мечтаният от Вас дом.
Локация: Намира се в сърцето на кв. Тракия в близост до парк Лаута и всичко нужно за спокоен и пълноценен начин на живот.
За повече информация и организиране на огледи, моля, свържете се с нас на посочения номер, като ще Ви е необходим следният референтен номер: 3393
Лайт Хоум имоти е доверен партньор на най-големите банкови институции в страната и съдейства за преференциални условия при нужда от кредитиране. Ще получите юридическо съдействие през целия процес на сделката, както и съдействие при подготовка, подаване и получаване на всички необходими документи за сделката.







