Comfort Properties Group има удоволствието да Ви представи 3 Стаен Апартамент в новострояща се жилищна сграда с гаражи и паркоместа в кв. Надежда 1, на 5 минути от метростанция Надежда , на пешеходно разстояние от 170 ЦДГ Пчелица , 24 ОДЗ Надежда , 101 СУ Бачо Киро , близо до спирка на градски транспорт, магазини, ресторанти.
Районът е изключително комуникативен и дава възможност за лесно придвижване до всяка точка на София. На разположение са още: аптеки, здравни заведения, хранителни магазини, кафенета и ресторанти, различни институции, административни сгради и др.
За реализацията на този проект е предвидено използването на съвременни материали и технологии.
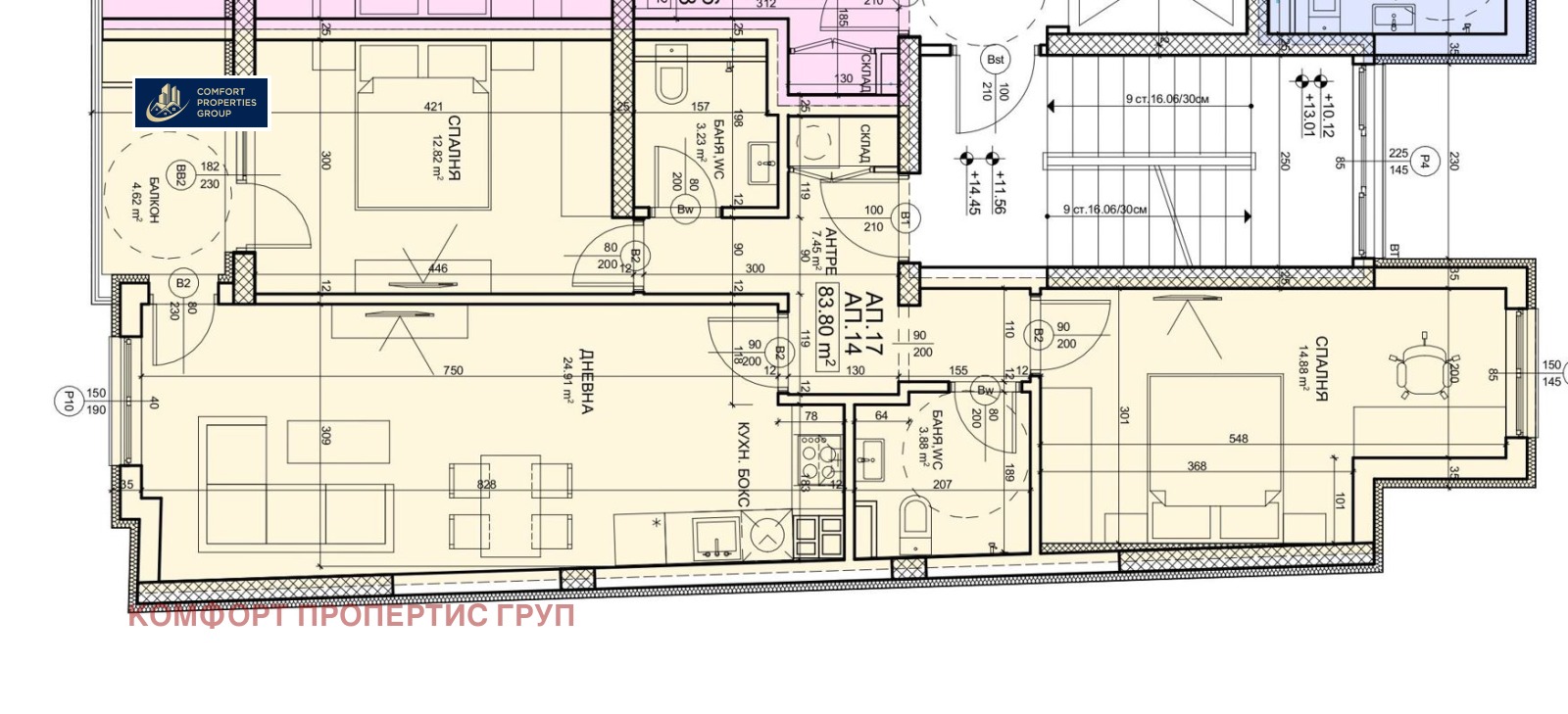
За продажба се предлага: Тристаен Апартамент разположен на 5 етаж от 7 етажна жилищна сграда, с площ от 99.81 кв.м с общи части и 83.80 кв.м застроена площ
Разпределение:
Антре - 7.45 кв.м
Дневна с трапезария и кухненски бокс 24.91 кв.м
Спалня 12.82 кв.м
Спалня 14.88 кв.м
Две бани с две тоалетни 3.88 и 2.3.23 кв.м
Балкон 4.62 кв.м
Изложение ИЮ/ЗС
Степен на завършеност на общи части:
Фасада: топлоизолация -10 см. с финишно покритие полимерна мазилка
Коридор/стълбище под полиран гранит или гранитогрес, иноксови парапети
Стени и тавани шпакловани и боядисани с латекс
Домофона система и Видеонаблюдение
Асансьор електрически
Степен на завършеност на апартамент:
Монолитна стоманобетонна конструкция
Тухлена зидария с керамични тухли външни 25 см. вътрешни преградни стени 12 см;
Покрив: пароизолация и топлоизолация; армирана циментова замазка; два пласта битумна хидроизолация.
Дограма: PVC (петкамерна система с троен стъклопакет)
Апартаментни врати:
Вътрешни интериорни врати.
Външна врата блиндирана врата.
Стени/Тавани гипсова мазилка; Под цименто-пясъчна замазка.
Изводи за кабелна телевизия и интернет.
Полипропиленови тръби на тапа с монтирани водомери.
Отопление: ТОК
Допълнително може да закупите: паркоместа и гаражи
Етап Строителство: Изграждане на груб строеж
Сградата очаква да бъде въведена в експлоатация / Акт 16 до края на 2027 г.
Примерна схема на плащане с банков кредит:
30% при подписване на ПД
50% Акт 14 чл. 181 при прехвърляне
10% Акт 15
10% Акт 16







