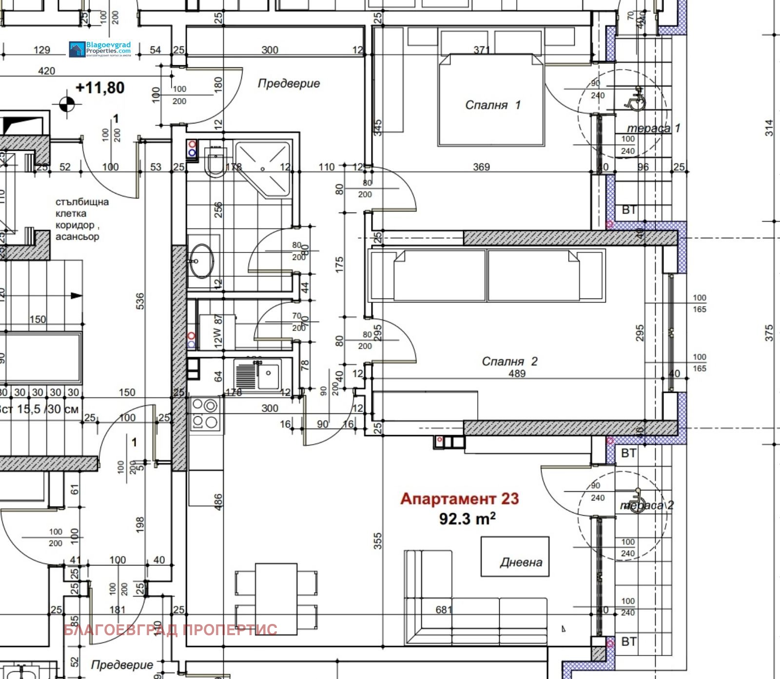
Предлагаме за продажба просторен тристаен апартамент разположен на 4-ти етаж от 5 етажна нова жилищна сграда на главен булевард в кв. Еленово. Сградата е на етап Акт 14 като предстоят финалните довършителни дейности. Акт 16 се предвижда за юни 2026 година. Жилището се състои от просторна всекидневна с кухненски бокс с излаз на тераса, две чудесни спални, още една тераса, два санитарни възела и коридор. Жилището се продава в следната степен на завършеност:
- напълно завършена сграда с външна топлоизолация,
- общи части напълно завършени с гранит по стълбите,
- асансьор,
- жилището ПВЦ дограма,
- стени и тавани (финна гипсова мазилка),
- поставени тръби за подово отоопление на цялото жилище с възможност да се избере газ или термопомпа,
- циментова замаска на пода,
- входна врата на жилището.
Прекрасно семейно жилище!







