Номер в агенцията - 54669
Агенция Абела предлага за продажба нов, модерен тристаен апартамент разположен на бул. Симеоновско шосе един от най-предпочитаните райони на София, в подножието на Витоша.
Характеристики:
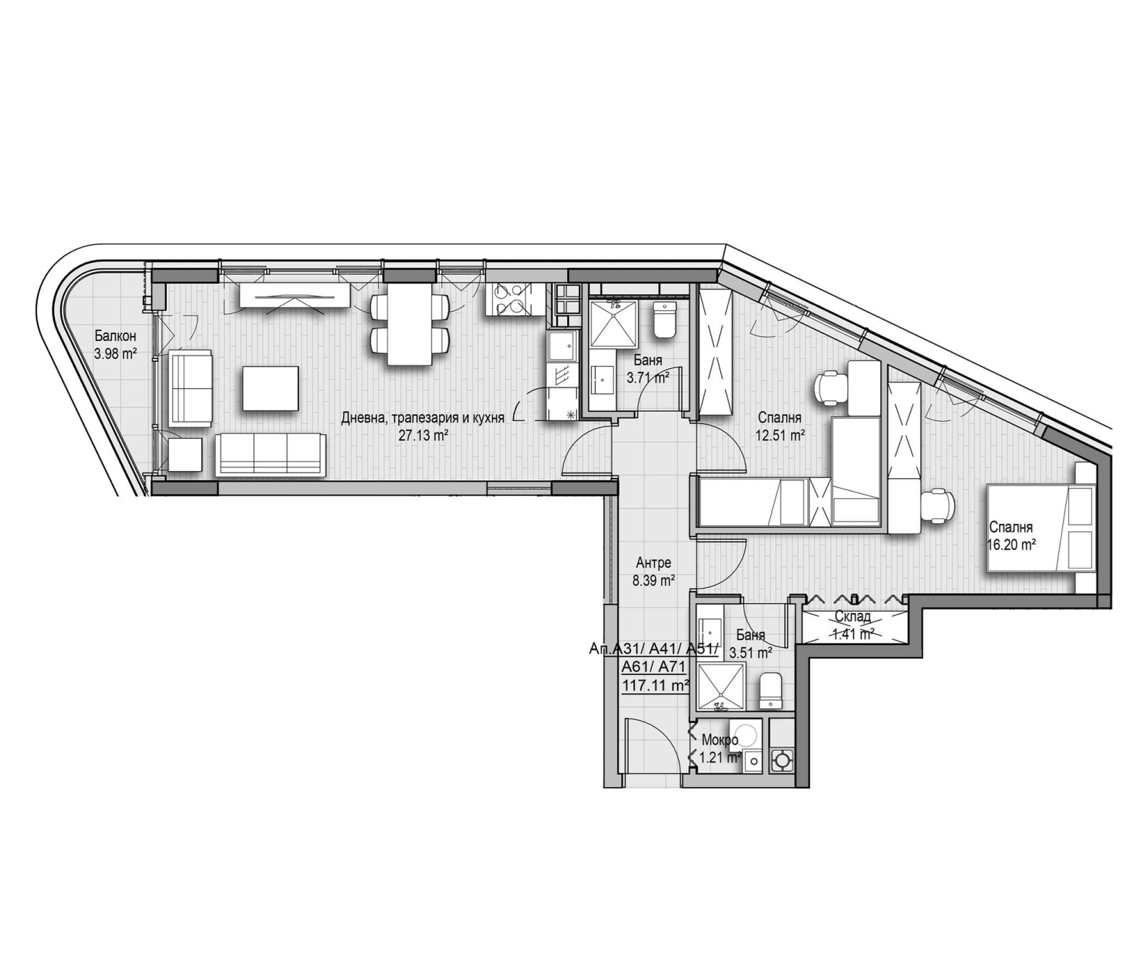
- Тип: Тристаен апартамент
- Площ: 117.11 кв.м
- Етаж: 3 от 8
- Изложение: Юг / Запад / Север
Разпределение:
- Светла дневна с кухненски бокс, две спални, две бани с тоалетна, входно антре, мокро помещение, склад, тераса. Просторен, светъл и уютен дом с отлично вътрешно разпределение.
Предимства:
- Отопление на газ
- Възможност за паркомясто или гараж
- Озеленени общи площи и модерна среда
- Контрол на достъпа и видеонаблюдение
- Удобен достъп до булеварди и градски транспорт
Локация:
- В непосредствена близост до спирки, училища, детски градини, магазини и заведения. Бърз достъп до Зоопарк София, Ловен парк и централната част на града.
- Идеален избор за хора, търсещи стилен дом или сигурна инвестиция в един от най-перспективните райони на София.
За повече информация:
Посетете www.abella.bg или се свържете с наш консултант.







