Translations in other languages:
All real estate ads published on imot.bg have been translated into English and published on the partner site
Получихте нова обява по филтър





Промяна на цена на наблюдавана обява


стара цена
нова цена
imot.bg – обяви за продажби и наеми на имоти
Сайт за имоти №1
Translations in other languages:
All real estate ads published on imot.bg have been translated into English and published on the partner site
ДОБАВИ ОБЯВА Редакция на обява
Начало Публикуване Търсене Нови сгради Агенции Новини Кредити Моят имот
Продава 3-СТАЕН
град София, гр. Банкя
240 000 €
469 399.20 лв.

(2 087 €, 4 081.82 лв./m2)
Цената е с включено ДДС
История на цената
Публикувана в 17:38 на 14 декември, 2025 год.
Обявата е посетена 129 пъти.
Площ:
115 m2
Етаж:
2-ри от 3
Газ:
ДА
ТEЦ:
НЕ
Строителство:
Тухла, Ще бъде въведен в експлоатация 2026 г.

Описание на имота:


ВИСОК КЛАС СТРОИТЕЛСТВО ! ! ! ПРЕД АКТ 16 ! ! ! ПОДОВО ОТОПЛЕНИЕ ! ! ! ПАРКОМЯСТО ! ! ! 10 МИН ОТ СОФИЯ ! ! !

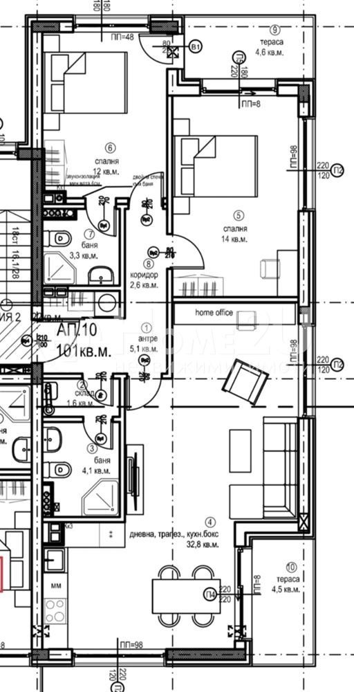
ХоумТуЮ има удоволствието да представи на Вашето внимание голям тристаен апартамент, находящ се на 10 мин от гр.София, а именно в с.Иваняне, район Банкя. Имотът е със следното функционално разпределение: входно антре, коридор, дневна с кухненски бокс и трапезария с излаз към тераса, две спални с излаз към тераса, едната от които със собствена баня и тоалетна, склад, както и още една баня с тоалетна. Сградата е бутикова и се намира в непосредствена близост до частно училище 'Цар Симеон Велики' като в строителството са заложени най-висок клас строителни материали като вентилируема фасада от LAMINAM и влагорегулиращи стени с естествена варова мазилка, шумоизолирани стени с тухлени блокове WIENERBERGER и алуминиева дограма REHAU с троен стъклопакет, асансьорите са от най-висок клас от Thyssen Krupp Elevators, а в жилището вече има инсталирано подово отопление. Сградата е пред АКТ 16, като въвеждане в експлоатация се очаква февруари/март 2026г. Към имота се продава подземно ПМ на цена от 25 000 евро. От всички помещения в жилището се откриват панорамни гледки, които не могат да бъдат скрити. Сградата се намира на 7км от Люлин и на 12км от Метростанция Сердика. До нея се движи редовна автобусна линия на столичен градски транспорт 81,която прави директна връзка с метрото по линия М1 и М4. За Ваше улеснение прилагаме схема на разпределение на имота. Ако този имот представлява интерес за Вас, обадете се сега и цитирайте този код: 140419.
Особености
Тухла
Асансьор
С паркинг
Контрол на достъпа
Саниран
За контакт:
0875363330
Агенция:
ХОУМ ТУ Ю БЪЛГАРИЯ
0875363330
ХОУМ ТУ Ю БЪЛГАРИЯ logo
Медал за прослужено време
В imot.bg от 2011 г.
home2u3.imot.bg
Адрес:
област София, гр. София, бул. Черни връх 1, ет. 2
http://www.home2u.bg
ИЗПРАТИ ЗАПИТВАНЕ
ИЗПРАТИ ЗАПИТВАНЕТО

Продава 3-СТАЕН
град София, гр. Банкя
Обява: 1c176572668677354

240 000 €
469 399.20 лв.
История на цената
(2 087 €, 4 081.82 лв./m2)

Цената е с включено ДДС
ЗАПАЗИ ОБЯВАТА

Местоположение: град София, гр. Банкя

Виж още имоти от София или още Тристайни Апартаменти в София
Допълнителни данни за имотите в района и сравнение с други райони: Търсене в АРХИВ 2013 - 2025 г.











Добави/редактирай
вид имот и район
*Средните цени са определени чрез медиана стойност.
Въпроси и предложения към imot.bg
КОНТАКТИ | SMS КОДОВЕ | ПОМОЩ | ОБЩИ УСЛОВИЯ | РЕКЛАМА | ЗАЩИТА НА ЛИЧНИТЕ ДАННИ | КАРТА НА САЙТА |
Резон Медия | Имоти | Автомобили | Работа | Новини | Обяви | Преводи и легализация 2002-2025 ® Copyright imot.bg
© imot.bg ползва и препоръчва хостинг услугите на Bulinfo.net
Следвайте ни в: