Продава се тристаен апартамент ж.к. Младост 4 | Нова сграда
Предлагаме за продажба тристаен апартамент, разположен на 6-ти етаж, в новострояща се сграда в ж.к. Младост 4, с очакван Акт 16 до 10.2026 г.
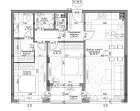
📐 Площи:
Чиста площ: 89,51 кв.м
Общи части: 14,84 кв.м
Обща площ: 104,35 кв.м
☀ Южно изложение с гледка към Витоша светъл и топъл апартамент през целия ден.
✔ Функционално разпределение
✔ Модерна нова сграда
✔ Отлична локация близо до метро, булеварди, търговски и бизнес зони
✔ Подходящ за лично ползване или инвестиция
✔ Опция за гараж срещу допълнително заплащане
🚗 Опция за закупуване на гараж към апартамента.
Имотът е отлична възможност за покупка преди Акт 16 при по-добри условия.







