Отличен тристаен апартамент в новострояща се жилищна сграда.
Жилището е разположено на комуникативно място в самото начало на Банкя, осигуряващо бърза връзка с центъра на София и е непосредствено до спирка на градски транспорт, осигуряващ директна връзка с метрото.
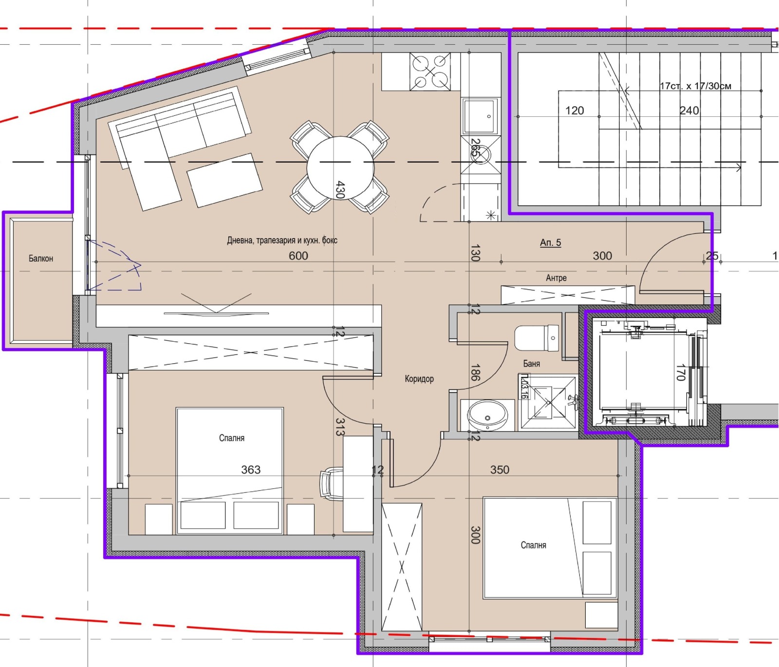
Апартаментът е със следното разпределение:
Входно антре
Просторна дневна част състояща се от дневна с кухненски бокс и трапезария.
Две самостоятелни спални
Баня и тоалетна.
От дневната се излиза на тераса.
Изложение: Юг Изток Запад.
Отоплението е на газ централна газификация.
Асансьор.
Към момента има свободни само четири тристайни апартамента.
Сградата ще бъде завършена с разрешение за ползване Акт 16, до края на 2026г.
В цената е включено надземно паркомясто позволяващо паркирането на два автомобила.







