ЕКСКЛУЗИВНО! ПРЕД АКТ 15! Арканум груп Недвижими имоти продава просторен тристаен апартамент в кв. Възраждане 1, гр. Варна! Имотът е след акт 14, на среден етаж, в сграда с високо качество на изпълнение! Намира се до Кауфланд ,Лидъл и пицария Амичи в кв. Възраждане! На една минута от спирки на градския транспорт, в близост до училища и детски градини!
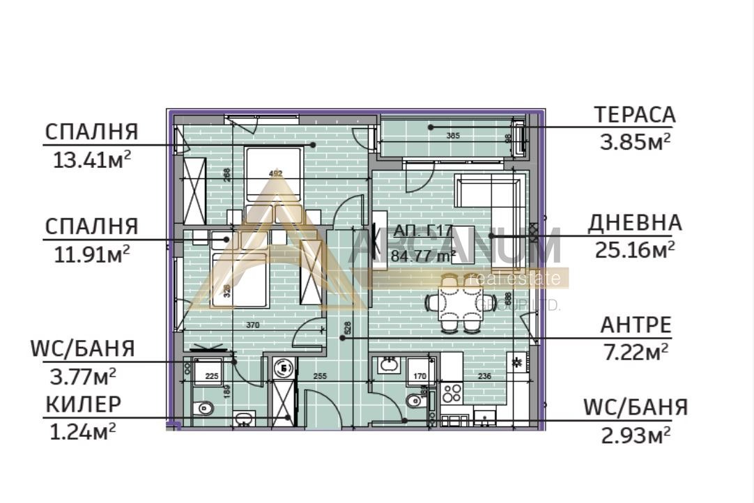
Изключително функционално разпределение, а именно коридор, просторна дневна с кухненски бокс, баня с тоалетна, спалня, втора спалня със собствена баня и тоалетна, килер, тераса, на която се излиза от дневната и спалнята. Имот подходящ за живеене!
Предимства: Среден етаж! Две санитарни помещения! Функционално разпределение! Комуникативна локация! Цена! Високо качество на строителство!
Код на обява : 7146423
За информация и огледи тел. за връзка : 0878449249







