БИЛДИНГ БОКС предлага за продажба тристаен апартамент в ж.к. 'Обеля 1'.
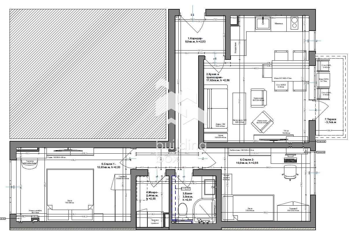
Жилището е със застроена площ от 70.36 кв.м., и има функционално разпределение, както следва: светла дневна с кухненски бокс, 2 спални, баня с тоалетна, входно антре и склад;
Намира се на 2-ви етаж от общо 4 етажа.
Изключителна локация :
- На 200м от метро
- На 50м с спирка на градски транспорт - автобус и трамвай
- На 200м от 30-та ДКЦ
- На 250м от училище и детска градина
- Близо до голяма хранителна верига, както и аптеки, дрогерии и банки.
Степен на завършеност:
В апартаментите с положена хидроизолация и плочки в баните
- Гранитогрес първо качество в коридор , складово помещение и зоната на кухненския бокс
- Включен интериорни врати
- Напълно завършена ВиК инсталация с включени водомери, спирателни кранове
- Монтирани Бойлери - 80L
- Включени ключове и контакти по стени
- По желание на бъдещите собственици - възможност за полагане на финишна шпакловка по стени., срещу допънително заплащане по договаряне.
Имотът е подходящ, както за живеене, така и за дългосрочна инвестиция.
БИЛДИНГ БОКС предоставя безплатна консултация и съдействие при финансиране на избрания от Вас имот.
Оферта 26877







