Тристаен апартамент с двор Последна възможност да станете собственик на имот в Първа фаза на Kambanite Residential Park, най-търсеният затворен комплекс в София, вече с Акт 16 и чисто нова пътна връзка с Garitage Park и Околовръстен път София.
Forton Homes представя изключителен апартамент в най-предпочитаната част на комплекса, заобиколен от всички страни с вечнозелена борова гора.
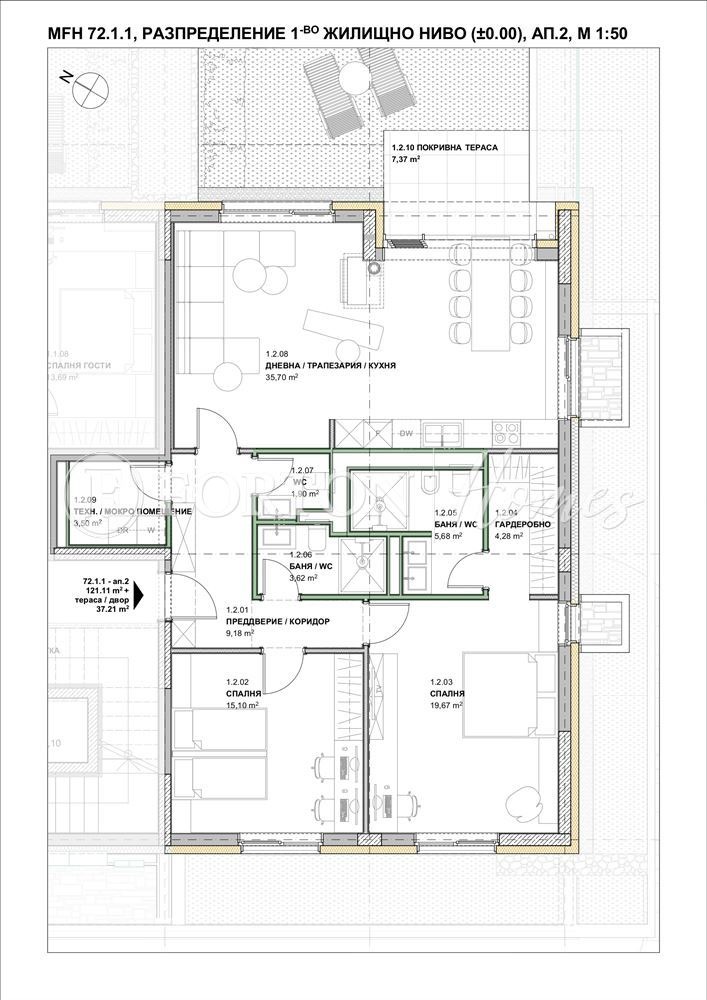
Площта на апартамента е 142 кв.м, от които 121 кв.м. са ЗП, с двор от 72 кв.м. и две прилежащи паркоместа.
Ситуиран е на първи жилищен етаж и има следното функционално разпределение: преддверие, техническо и мокро помещение, тоалетна, дневна с кухня и трапезария с излаз към двора, спалня с гардеробна и собстсвена баня и още една спалня с отделна баня и тоалетна.
Подобни апартаменти в тази локация са почти изчерпани. Това е една от последните възможности да станете част от елитна, затворена общност с природна среда и стратегическа локация. Действайте сега, преди този имот да бъде резервиран!
Комплексът е разположен в непосредствена близост до малка река и до Международният парк на децата - Камбаните. Подсигурени са три отделни достъпа до проекта и главен път, който води до Околовръстен път София за по-малко от 8 минути.
Камбаните Резиденшъл Парк цели да обедини хора със сходни ценности в общност, осигурявайки отлична среда за активен, пълноценен и сигурен начин на живот.
Първа фаза на комплекса е изградена върху площ от 40 декара, от общо 110, от които 4 декара са борова гора, както и фантастичен речен парк и търговски център. Ние, наричаме това град - в града.
Доказал се с безкомпромисно качество на строителството и неповторими природни дадености, това е проект без еквивалент на пазара.
Предимства:
24-часов контролиран достъп с жива охрана и периметрово видеонаблюдение;
4 декара Борова гора, която е част от комплкса;
Зони за спорт и развлечение - баскетбол, футбол, тенис на корт, тенис на маса и фитнес зони, кучешки парк, барбекю;
Пешеходни алеи, детски площадки и мини въжен парк;
Професионално управление и поддръжка на общи части. Техническа и градинарска услуга към всеки имот
Технически характеристики:
15 см EPS + вътрешна изолация;
Соларна система за топла вода;
Газов котел с бойлер;
Външни врати Solid/Reynaers;
Дограма Reynaers Masterline 8;
Външни алуминиеви ламелни щори с ел. управление
В цената са включени две паркоместа и складово помещение.
Станете част от бъдещето и се обадете сега за лична презентация.
Водещ консултант: Иван Хаджикиров
+359 (887) 502 211
[email protected]



