Агенция SUPRIMMO: www.suprimmo.bg
Представяме за продажба апартамент в нова жилищна сграда, разположена в една от най-предпочитаните части на жк. Люлин . Намира в тиха и спокойна част, в близост до паркова среда, с бърза и лесна връзка до центъра на града.
Районът е предпочитан за живеене заради добре изградената инфраструктура, комуникации, които са предпоставка за комфортен живот. В близост се намират хипермаркети, училища, детски градини, медицински центрове, спортни зали, паркови зони и удобен градски транспорт, включително метро, автоуслуги, сервизи, бензиностанции които допълват удобството и функционалността и биха отговорили на най-високите изисквания на всеки един клиент.
Проектирана е самостоятелна жилищна сграда на 7 етажа с надземни паркоместа и гаражи.
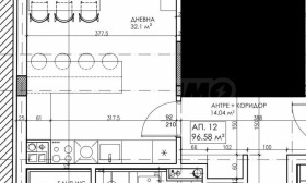
Апартаментът е тристаен, с обща площ 113.98 кв.м. (нетна площ 96.58 кв.м. + общи части 17.40 кв.м.) и е разположен на четвърти етаж.
Разпределение:
антре;
дневна с кухня и трапезария;
две спални;
две бани с тоалетни;
тераса.
Жилището се предлага за продажба качествено завършено по БДС, на шпакловка и замазка.
Модерно и качествено строителство, висок стандарт на качество на използваните материали:
Монолитна стоманобетонна конструкция, оразмерена на земетръс;
Външни и вътрешни стени от червени керамични тухли на водещ европейски производител Wienerberger;
Осигурени топло-, хидро- и шумо- изолации;
Вътрешни мазилки от естествен гипс за здравословна среда;
Инсталации, изпълнени със сертифицирани материали на реномирани производители;
Стилна фасада с класическа архитектура;
Качествена дограма с немски петкамерен профил и троен стъклопакет;
Високо-енергийни и ниско-емисионни стъкла;
Голям и безшумен асансьор. Красиви, здрави и сигурни външни врати;
Представителни общи части с модерни миещи се вътрешни мазилки в топли цветове и настилки по стълбища и коридори от естествен гранит.
Материали, осигуряващи лесна поддръжка, дълговечност и чувство за уют в ...
За повече информация свържете се с нас и цитирайте референтния номер на имота. Моля, кажете, че сте видeли обявата в този сайт.
Референтен номер: AP 131653
Тел: 0882 638 446, 02 454 11 80
Отговорен брокер:Добринка Николова







