LUXIMMO FINEST ESTATES: www.luximmo.bg
Представяме просторен тристаен апартамент със собствен, голям двор в 'COMFORT RESIDENCE - Малинова долина II' - ексклузивен жилищен проект, дело на един от най-талантливите и модерни столични архитекти. Строителството ще бъде реализирано от инвеститорска компания с безупречна репутация и богата строителна история. Инвеститорският тандем разполага с повече от 35 завършени сгради и комплекси в южните квартали на столицата София, морските и планинските курорти.
С АКТ 14! БЕЗ КОМИСИОНА ОТ КУПУВАЧА!
Планирано завършване - до края на 2026 г.
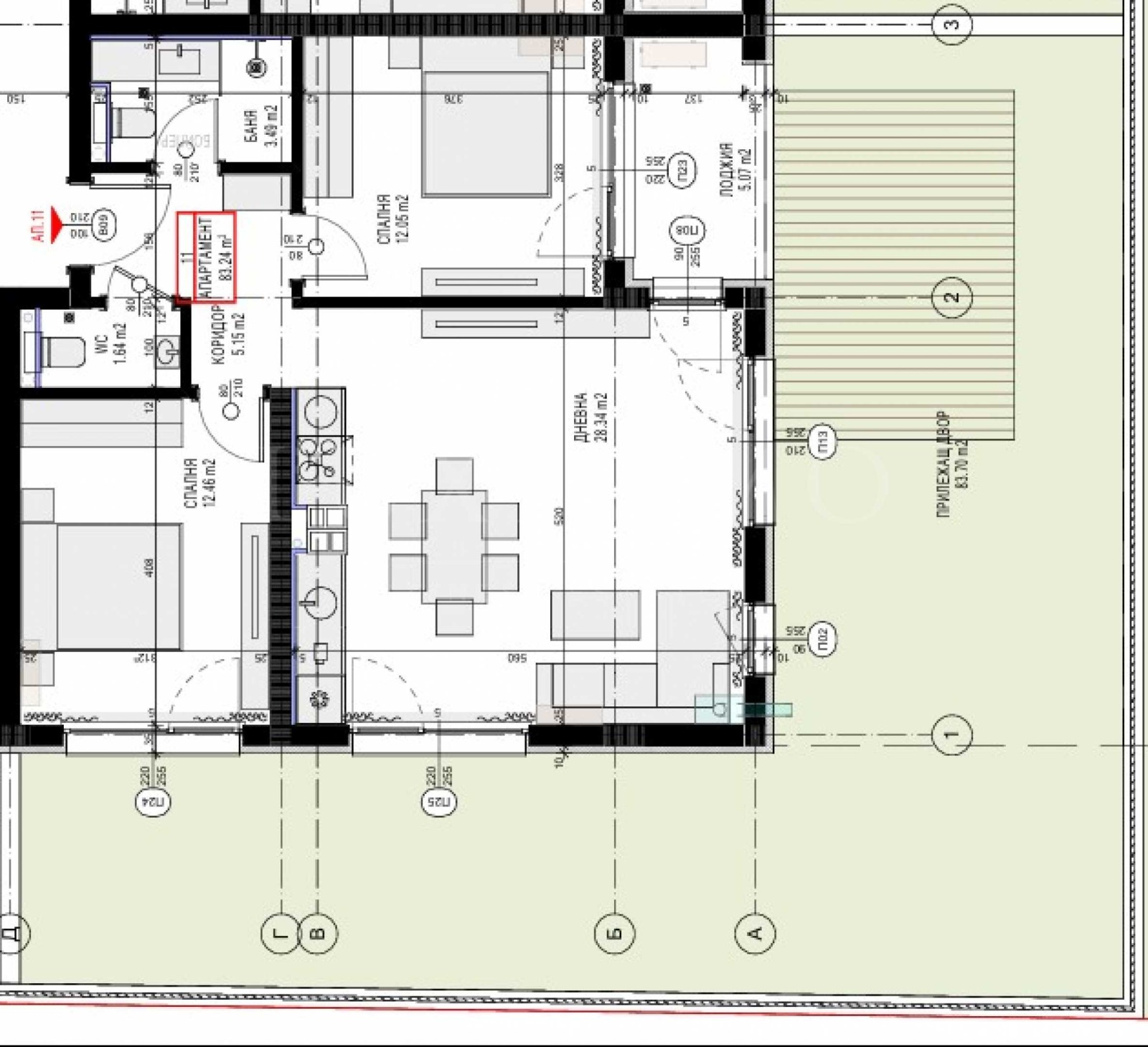
Апартамент 11 е разположен на 1-ви (партерен) етаж в сградата и има застроена площ от 83.24 кв.м, с разпределение: коридор, баня/тоалетна, тоалетна, светла дневна с кухня и трапезария, две комфортни спални, веранда. Жилището е с включен в цената прилежащ двор - 83.70 кв.м и склад - 3.38 кв.м.
Имотът се издава в степен на завършеност по БДС (на шпакловка и замазка). Отоплението е на газ и климатици.
Има възможност за закупуване на подземни паркоместа на цени от 25 833 евро (50 525 лв.) без ДДС или наземни с цени от 17 500 евро (34 227 лв.) без ДДС.
Локация
Новата жилищна сграда на ТАСКОВ & СТОЯНОВ от поредицата COMFORT RESIDENCE е разположена в новообразувания район на кв. 'Малинова долина', в близост до Националната спортна академия 'Васил Левски' (НСА). Проектът е дело на утвърденото и многократно награждавано архитектурно бюро STUDIO CREATIVE, с което инвеститорът сътрудничи дългосрочно.
Локацията е с отлична свързаност близо до бъдеща метростанция в района, от линията 'Надежда - Лозенец', до университетите на 'Студентски град', НСА и Зимния дворец, с бърз достъп до 'Симеоновско шосе' и Околовръстен път, Ring Mall, Бизнес парк София. Удобен е и достъпът до ...
Цената на имота е 211 348 евро / 413 360.76 лв. без ДДС или 253 617 евро / 496 032.91 лв. с ДДС. Данъчен кредит може да се ползва при определени условия.
За повече информация свържете се с нас и цитирайте референтния номер на имота. Моля, кажете, че сте видeли обявата в този сайт.
Референтен номер: SOF-136530
Тел: 0882 817 565, 02 425 69 26
Отговорен брокер:Любин Чаков
Без комисиона от купувача



