Сграда 'Н' - жил. к-с Семирамида- Витоша. Най-доброто съотношение: ЦЕНА- КЧЕСТВО - ПОЛЕЗНА ПЛОЩ!Без такса поддръжка. Цената включва монтирани климатици във всяка стая.Без такса подръжка.
0878 878 535- офис продажби, 0894 466 863 - огледи
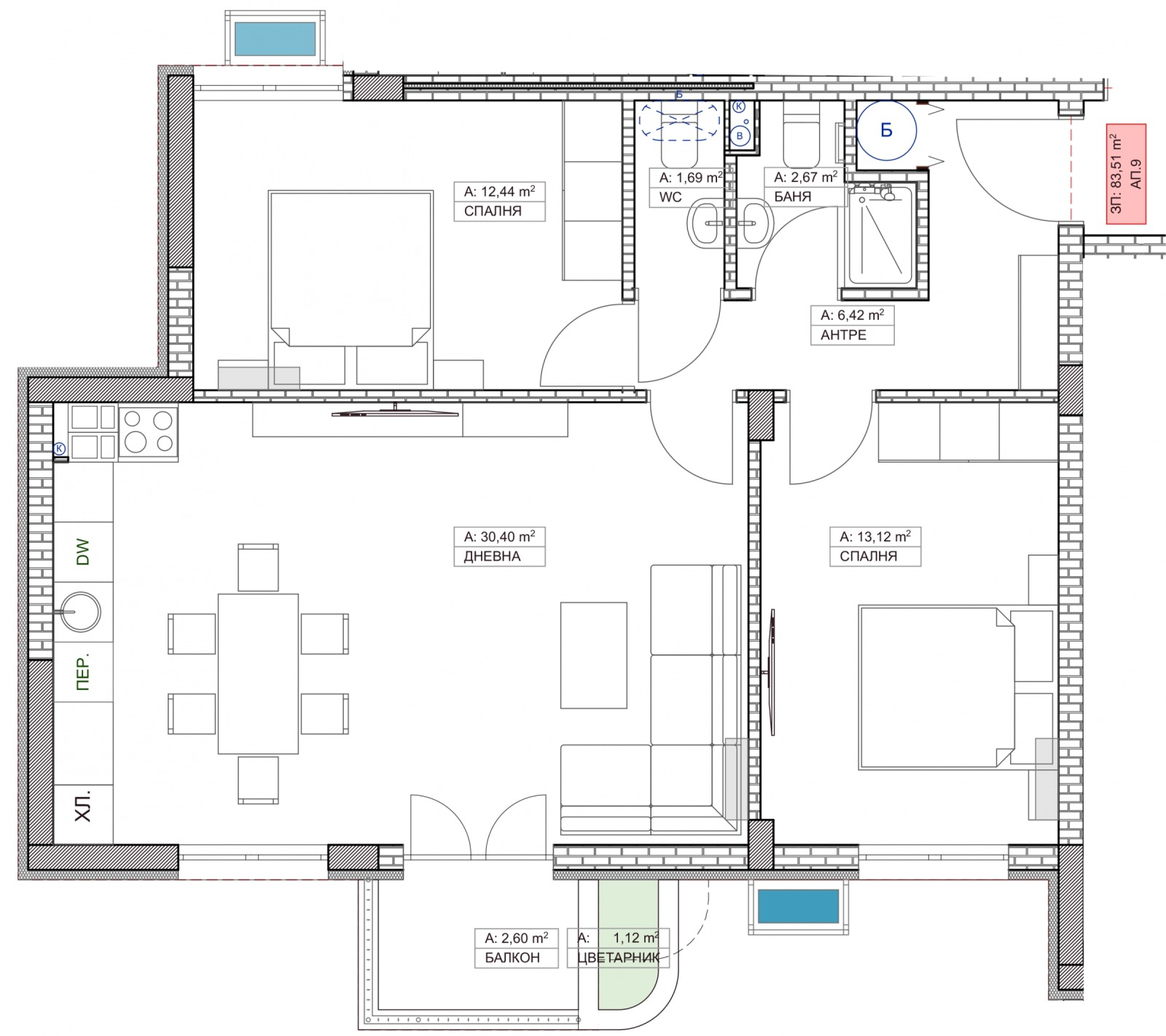
Тристаен, просторен апартамент с правилни форми и гледка към Витоша планина.
Ап.: А9
Етаж: 2
Спални бр.: 2
Обща площ м2: 93,07
Общи части м2: 9,56
Изложение: З/И
Цена с ДДС: 204 754 евро
Етап на сграда 'Н' - Кота ет.2
Комплекс на 191 м. от предстоящата метростанция в кв.Витоша, планирана да стартира изграждане през 2026г. Без комисионна!
Обявената цена е най-ниската възможна цена,според начина на плащане.
Обадете се сега на 0878 878 535 или 0894 466 863.
Осигурено финасиране на ранен етап-ниски лихви!
СУПЕР ЛУКСОЗНО СТРОИТЕЛСТВО!
АБСОЛЮТНИЯТ МИМИНУМ ОБЩИ ЧАСТИ,КОЙТО МОЖЕ ДА СЕ ПОСТИГНЕ-РЕАЛНА,ИЗПОЛЗВАЕМА ПЛОЩ!
Удобен достъп до комплекса през улиците Константин Петканов и ул. Слав Караславов и от Околвр.път. Обслужващи улици и цялостна инфраструктура изпълнена от нас, вкл. нов вход-изход към Околовръстен път, канализация и газифициране на района.
Всеки кв.м - полезна площ!
СВЕТЛИ ( чисти) площи на помещенията, измерени без стени!
Минимални общи части !
Супер луксозно и качествено строителство без аналог на имотния пазар в София.
Уникален по рода си ЗЕЛЕН комплекс с вертикални фасадни градини, с капково напояване и умно управление .
Детска площадка към всяка сграда.
Нова инфраструктура!
ТОП локация в кв. Витоша - зад хотел Макси,ул. проф. Васил Аранаудов.
И малко примерна информация, за това как строим.
Керамична фасада ,10 см външна изолация с КАМЕННА вата , 7-камерна PVC дограма Rehau, с прекъснат термомост, троен шумоизолационен стъклопакет с нискоемисионно Ка стъкло-4 сезона,топъл дистанционер, климатици General Fujitsu, монтирани във всяка стая, включени в цената, балкони, изпълнени със специален мразоустойчив гранитогрес,противоударна шумоизолация между етажите и между апартаментите, двойна хидроизолация,луксозни общи части, просторни луксозни асансьори Schindler или еквивалент, безплатни паркинги за велосипеди , самостоятелен двор с детска площадка към всяка сграда.
За максимална шумо и топлоизолация - Между всички апартаменти : Двоен зид с вътрешна изолация от Немски тухли Wienerberger Porotherm 12 N+F/120 mm., за защитена зидария, с нут и федер + Porotherm 8 N+F/80 mm. с междинно звено от 50 mm. каменна вата и каучукова подложка.







