Translations in other languages:
All real estate ads published on imot.bg have been translated into English and published on the partner site
Получихте нова обява по филтър





Промяна на цена на наблюдавана обява


стара цена
нова цена
imot.bg – обяви за продажби и наеми на имоти
Сайт за имоти №1
Translations in other languages:
All real estate ads published on imot.bg have been translated into English and published on the partner site
ДОБАВИ ОБЯВА Редакция на обява
Начало Публикуване Търсене Нови сгради Агенции Новини Кредити Моят имот
Продава 3-СТАЕН
град Добрич, Център
153 000 €
299 241.99 лв.

(1 515 €, 2 963.08 лв./m2)
Не се начислява ДДС
История на цената
Публикувана в 16:58 на 3 декември, 2025 год.
Обявата е посетена 145 пъти.
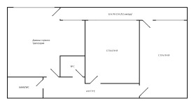
Площ:
101 m2
Етаж:
4-ти от 5
Строителство:
Тухла, Въведен в експлоатация 1980 - 1989 г.

Описание на имота:


Vivahome предлага за продажба ексклузивно 3-стаен ЮЖЕН апартамент, находящ се в тухлена сграда с отлична локация в гр. Добрич.

Имотът е със застроена площ от 101м2 и е със следното разпределение - антре, всекидневна с кухня и тразперазия, 2 просторни спални, санитарен възел, отделна тоалетна, перално помещение и тераса.

Продава се обзаведен и оборудван, след основен ремонт с множество подобрения, част от които:

-- сменени ВиК и Ел. инсталации
-- нови подови настилки с 5см. фибран
-- нови мебели и електроуреди

Намира се на 4ти непоследен етаж в тухлена сграда с контролиран достъп и поддържани общи части.

Отлична локация - до СУ 'Петко Рачов Славейков' и Езикова гимназия 'Гео Милев'.

Предимства на имота:

-- Просторни площи, без преходни стаи
-- Напълно обзаведен и оборудван, след основен ремонт
-- Удобна локация
-- Изцяло ЮЖНО изложение
-- Маза /16м2/, и таванско помещение /13м2/ с отделен електромер точно над апартамента
-- Тухлена сграда с ремонтиран покрив от 2025г. с гаранция

Имота е подходящ за покупка с банков кредит !

За повече информация и огледи - 0877776403/Питър Радев

Съдействаме за отпускане на банков кредит - обадете ни се за консултация !
Vivahome - Вашият партньор в света на недвижимите имоти !

Разгледайте и другите ни предложения на www.vivahome.bg
Особености
Тухла
С паркинг
Интернет връзка
Контрол на достъпа
Саниран
За контакт:
0877776403

Този имот се предлага само на частни лица
Брокер:
Питър Радев
0877776403
Офис: бул. Васил Левски 10
Още оферти от брокера: Продава | Дава под наем | Купува | Наема
Агенция:
ВИВАХОУМ
0877779462
ВИВАХОУМ logo
Медал за прослужено време
В imot.bg от 2021 г.
vivahome.imot.bg
Адрес:
област Варна, гр. Варна, бул. Васил Левски 10, ет.1, офис 1
ИЗПРАТИ ЗАПИТВАНЕ
ИЗПРАТИ ЗАПИТВАНЕТО

Продава 3-СТАЕН
град Добрич, Център
Обява: 1c176477389161826

153 000 €
299 241.99 лв.
История на цената
(1 515 €, 2 963.08 лв./m2)

Не се начислява ДДС
ЗАПАЗИ ОБЯВАТА

Местоположение: град Добрич, Център

Виж още имоти от Добрич или още Тристайни Апартаменти в Добрич
Допълнителни данни за имотите в района и сравнение с други райони: Търсене в АРХИВ 2013 - 2025 г.











Добави/редактирай
вид имот и район
*Средните цени са определени чрез медиана стойност.
Още обяви в imot.bg
Въпроси и предложения към imot.bg
КОНТАКТИ | SMS КОДОВЕ | ПОМОЩ | ОБЩИ УСЛОВИЯ | РЕКЛАМА | ЗАЩИТА НА ЛИЧНИТЕ ДАННИ | КАРТА НА САЙТА |
Резон Медия | Имоти | Автомобили | Работа | Новини | Обяви | Преводи и легализация 2002-2025 ® Copyright imot.bg
© imot.bg ползва и препоръчва хостинг услугите на Bulinfo.net
Следвайте ни в: