НОВ 3-СТАЕН С ОТЛИЧНА ЦЕНА! РАЗСРОЧЕНО ПЛАЩАНЕ! УТВЪРДЕН СТРОИТЕЛ!
Продава се тристаен апартамент в кв. Владиславово ново строителство, Акт 14
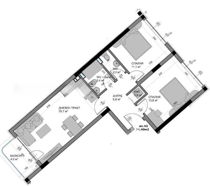
Лайънс Груп Варна предлага за продажба 3-стаен апартамент в модерна жилищна сграда ново качествено строителство (Акт 14), изпълнявана от утвърден строител. Имотът се намира на 7-ми етаж и предлага функционално разпределение, подходящо както за семейно жилище, така и за инвестиция.
🏡 Характеристики:
Етаж: 7
Статус: ново строителство, пред Акт 14
Разпределение:
- просторна дневна с кухненски бокс
- две самостоятелни спални
- антре
- баня с тоалетна
- отделна тоалетна
- килер/склад
- тераса
⭐ Предимства на имота:
- Разсрочено плащане удобни условия за купувача
- Атрактивна цена за района и етапа на строителство
- Качествена конструкция и изпълнение от доказан строител
- Възможност за закупуване на подземно паркомясто
Практичен и добре разпределен имот, подходящ за живеене или инвестиция, с отлични условия за покупка.
За огледи и повече информация / 0895 142 147
Реф./14523
Брокер/ Здравко Хаджиев
Цена на имота / 133 000







