На Вашето внимание, Имоти плюс представя 3-стаен апартамент в Люлин 4.
Описание:
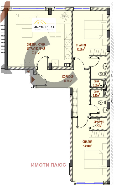
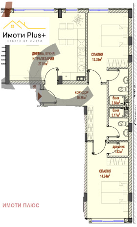
Квадратура: 102,57
🏢 Етаж: 3
🏡 Тип имот: 3-стаен
📐 Разпределение: Хол с кухненски бокс, спалня с дрешник, спалня с баня и тоалетна, баня и тоалетна
🔥 Отопление:ТЕЦ
☀️Изложение: североизток
Предлага се имот с АКТ16 БЕЗ КОМИСИОННА , който предлага практично разпределение и добър потенциал за различни нужди както за собствен дом, така и за инвестиция. Пространството позволява лесно моделиране според стил и предпочитания. На територията на блока са разположени магазин CBA, аптека Гален и павилион.
Местоположение:
📍 Блокът се намира в Люлин 4 и е в непосредствена близост до големи супермаркети, аптеки, ресторанти, офис на Еконт, ДГ 55 Иглика и 96-то СОУ. На една минута разстояние е спирката за автобус 111 и тролейбус 7. На около 5 минути разстояние пеша се намира Кооперативния пазар и Руския пазар.
Възможно е и закупуването на паркомясто в блока!
📞За допълнителна информация може да се свържете с нас на тел.: +359 89 330 7597







