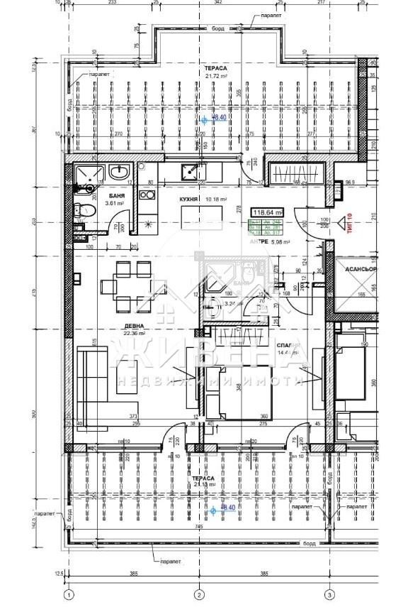
Само от Живена! Предлагаме за продажба голям, панорамен апартамент, разположен е на 5-ти етаж в 5-етажна сграда в затворен комплекс Bella Vita, с АКТ 16, в района между к.к. Св.Св. Константин и Елена и кв. Виница. Имотът е с обща площ 127.52 кв.м (чиста площ - 118.64 кв.м), със следното разпределение: дневна (23 кв.м), кухня (10 кв.м), спалня (14.4 кв.м), две бани с тоалетна (5 кв.м и 3.24 кв.м), коридор (8 кв.м), килер (1.5 кв.м) и две панорамни тераси (21 кв.м и 21.8 кв.м). Апартаментът има възможност да бъде преустроен в 3-стаен, като кухнята може да се преустрои във втора спалня. Имотът е изключително светъл, топъл и просторен, с изложение изток-запад и нескриваема гледка към морето. Направени са подобрения в апартамента, които включват: изолация с гипсокартон и вата на тавана, изравнена мазилка на пода, готов за поставяне на желаната настилка и едната баня е разширена с 1.5 кв.м. Имотът е разположен в нов модерен затворен комплекс с контролиран достъп с бариера с чип, денонощна охрана и видеонаблюдение, парк със зони за отдих, детски кът и спортни игрища - тенис корт. Таксата поддръжка е 100 лв. на месец. Водата в комплекса е филтрирана до 100 микрона по италианска технология на ЕУРОАКУЕ. Към апартамента има възможност да се закупи закрито паркомясто на цена от 20000 евро. Имотът се намира на 9 км от центъра на град Варна, 1.5 км от к.к. Св. Св. Константин и Елена и Еко парка, на 1.6 км от кв. Виница. Има хранителен магазин в сградата, в непосредствена близост е до автобусна спирка, както и близо до ясли, детски градини, училища, университети и главни пътни артерии. Агенция ЖИВЕНА извършва необходимите проверки на имота, който сте избрали, организира всички етапи на сделката до нейното финализиране. Оказваме съдействие за отпускане на банков кредит. Оферта 7372







