ARCO REAL ESTATE предлага за продажба просторен тристаен апартамент в кв.Сердика, в близост до болница 'Пирогов'.
Апартаментът е разположен на етаж 4 от 12 в тухлена сграда, която ще бъде завършена 2026 г.
Сградата се намира в близост до магазин Кауфланд, б-ца 'Пирогов', Мол София, училища и др.. В бизост има множество спирки за бърз достъп до градски транспорт, което осигурява бърз достъп до центъра на София.
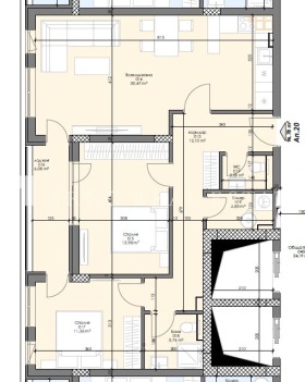
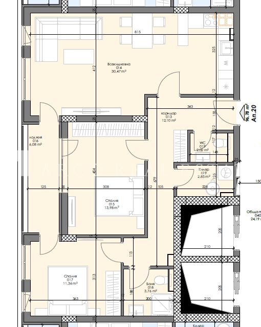
Апартаментът е със застроена площ от 96,78 кв.м., с общи части 114,24 кв.м
Жилището се състои от: голяма и слънчева дневна с трапезария и кухненски бокс /30,47 кв.м/, две спални /13,98 кв.м и 11,36 кв.м./, две бани с тоалетни, една тераса, килер и входен коридор.
Към апартамента може да бъде закупен гараж или парко място, директно от инвеститора.
Сградата е на етап преди акт 15, в рамките на 2026г. сградата ще получи 'Разрешение за ползване'. В комплекса има разположени няколко сгради, като всяка ще получава правото на ползване според нейното завършване. Апартаментът се предава на шпакловка и замазка.
Начинът на плащане: индивидуална схема
Допълнителна информация:
Задължително сключване на договор за поддръжка по 0.65 лв. на кв.м. или 74.00 лв. месечно.
Сградата и комплекса е проект на утвърден строител. Високо качество на строителство и мателиали.
В комплекса ще има детска площадка, кафета, магазини, аптека, фитнес и др.услуги, водещи до модерно, удобно и високо качество на жизнен стандарт.
За повече информация Лилия Христова 0879 389 995
Агенцията работи по изискванията на БДС EN 15733. Предлагаме съдействие за довършителни дейности при желание на новите собственици, безплатно съдействие за ипотечно кредитиране и изготвяне на пазарна оценка на имота!







