✅Оферта 3210
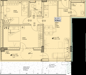
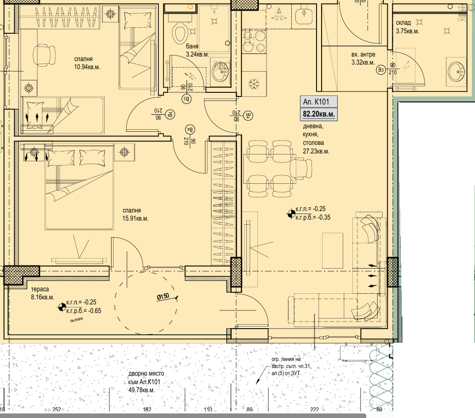
➡️БРАВА ЕСТЕЙТ Ви представя Тристаен апартамент със собствен двор в новострояща се сграда в кв. Христо Смирненски
➡️Предназначение: Перфектен за живеене и инвестиция
➡️Изложение- Юг- Запад
➡️ Площ: 98 кв.м + 50 кв. м двор.
➡️Жилището се издава със завършени: Стени - шпакловка, под - замазка, ЕЛ - инсталация до ключ, ВиК - до тапа, ПВЦ - дограма, външна блиндирана врата.
➡️Строителната фирма изпълняваща сградата е с дългогодишно присъствие на пазара и впечатляващо портфолио от завършени обекти. Всеки проект е реализиран с внимание към детайла и високи стандарти.
➡️Гъвкави схеми на плащане.
✅ПРЕДИМСТВА НА КОМПЛЕКСА:
-Съвременен дизайн - иновативна архитектура и функционални пространства.
-Сигурност с видеонаблюдение
- Подобрена шумоизолация
-Система за филтриране на питейната вода
-100% осигурено паркиране
- Подготовка за дом с автоматизация.
- Премиум удобства - зони за отдих, парк с площ 3 500 кв.м и социални пространства.
➡️Предлагаме БЕЗПЛАТНО кредитно посредничество за ипотека, потребителски кредит и рефинансиране!
📞За повече информация и оглед, ни се обадете директно!







