БЕЗ КОМИСИОН .
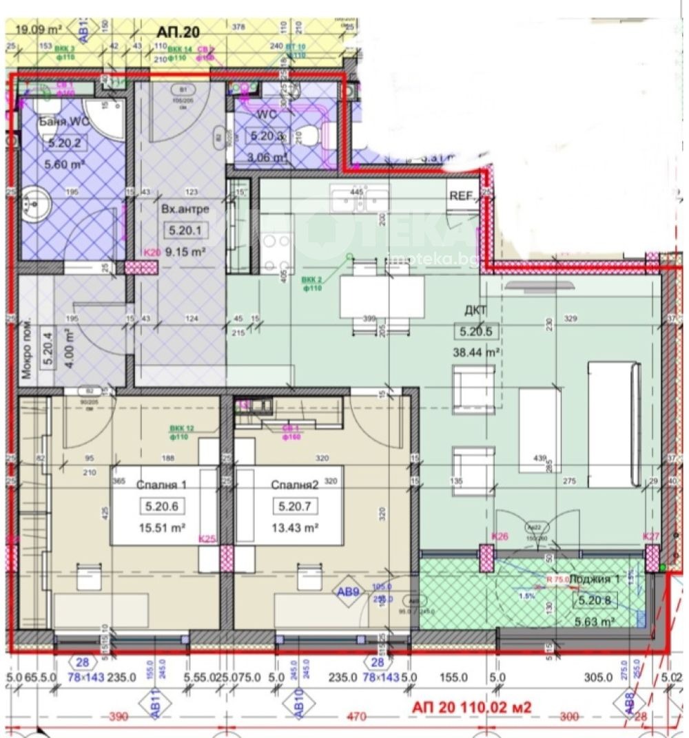
Тристаен апартамент, състоящ се от: коридор, хол с кухненски бокс, две спални,дрешник, ,две бани с WC и тераса с нескриваема гледка към ВИТОША. Очакван акт 16 края на 2026 г.
Ул.Екатерина Ненчева с бърз излаз на Бул.Симеоновско шосе .
Отлична локация и инфраструктура
В близост до Ловен парк.
Жилищна сграда с акт 14 и съвременна визия. Разполага с 20 апартамента, магазини и подземни паркоместа.
Ниско енергийна сграда
Вентилируема фасада ( камък травертин, каменна вата с воал за паротит хидроизолация )
Отопление : газово или електрическо котле с подово отопление,опция термопомпа.
Висок клас дограма с трислоен стъклопакет и нискоемисионно стъкло
Високо качество и стандарт на строителството
Луксозен интериор и екстериор: гранит, керамика, естествен камък и стькло
Функционални и просторни разпределения;
Училище , фитнес център
Контрол на достъпа,
Охрана и видеонаблюдение 24/7/365
Обади се сега и цитирай този код 677305



