Референтен код: SSSP03(моля, споменете този код, когато се свързвате с нас)
Ние от Myvision real estate имаме удоволствието да ви представим новострояща се жилищна сграда, която се намира в едно от най комуникативните места в София. Централно, но същевременно, тихо и спокойно местоположение на сградата е основен приоритет за собствениците . На пешеходно разстояние можете да намерите:Метростанция Хаджи Димитър ( 3 мин.); Метростанция Театрална (13 мин);училище 143 ОУ (5 мин);Детски градини Дъга и Слънце (5 мин.); Парк-градина Площад родина (1 мин.);Парк Заимов (13 мин.) BILLA Черковна и BILLA В.Вазов (3 мин.) в район с добре изградена инфраструктура. , апартаментите в сградата са идеални не само за самостоятелно ползване, но и за отдаване под наем.
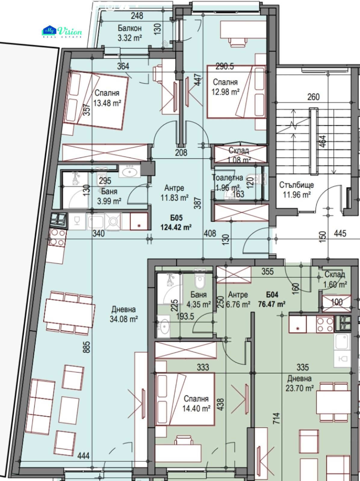
Този апартамент ще бъде ваш за 311 050 евро
Ако поискате повече информация относно този имот, можете да се свържете с Саша Стойчева , +359888234060 ли по имейл: [email protected]
Посетете още от нашите предложения, достъпни на www.myvision-bg.eu
Партньор на кредитни институции и банки,съдействие за получаване на кредити.







