Представяме панорамен тристаен апартамент в Mountain View Obelya - ексклузивен жилищен комплекс с концепция за функционалност, комфорт и достъпност, с широк избор от практични нови жилища в бързо развиващия се кв. 'Обеля'. Бъдещите собственици на имота ще се насладят на спокойна и добре организирана среда с отлична логистика и лесен достъп до ключови части на столицата, озеленен вътрешен двор и разнообразие от търговски обекти в самия комплекс.
Само на 35 метра от метростанция, локацията осигурява бърз и лесен достъп до центъра на София, както и до главните пътни артерии и спирки на градския транспорт. Районът предлага всички необходими удобства за комфортен живот търговски обекти, училища, детски градини, спортни комплекси и здравни заведения в непосредствена близост.
ЕКСКЛУЗИВНИ ПРОДАЖБИ. БЕЗ КОМИСИОНА ОТ КУПУВАЧА!
Разрешение за строеж - в средата на лятото 2026 г.
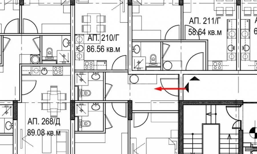
Имотът е разположен на 8-и етаж и е с обща площ 100.01 кв.м, чиста площ - 86.56 кв.м, върху които са разпределени: антре, баня с тоалетна, дневна с кухня и тераса, една спалня със собствена баня, втора спалня. Издава се в степен на завършеност по БДС, с петкамерна PVC дограма Rehau, с троен стъклопакет и блиндирана входна врата.
Има възможност за закупуването на гаражи на цени от 40 000 евро (78 233.20 лв.), както и външни паркоместа на цени от 18 000 евро (35 205 лв.)
Новият комплекс е с финансово предимство без индексация на цените след подписване на договор, както и с възможност за избор между две схеми на плащане.
Депозит:
Депозит за двустаен апартамент - 5 000 евро (9 779 лв.);
Депозит за тристаен или четиристаен имот - 10 000 евро (19 558.30 лв.).
Схема 1:
При подписване на договор: 40%;
При кота 0: 20%;
20% на Акт 14;
10% на Акт 15;
10% на Акт 16.
Схема 2:
При подписване на договор: 20%;
При кота 0: 10%;
50% - чл.181;
10% на Акт 15;
10% на Акт ...
За повече информация свържете се с нас и цитирайте референтния номер на имота. Моля, кажете, че сте видeли обявата в този сайт.
Референтен номер: SOF-136289
Тел: 0882 812 939, 02 401 80 16
Отговорен брокер:Албена Хюбнер
Без комисиона от купувача
Виж всички обяви в superimoti.bazar.bg или тук







