CLOUD HOMES представя изключителен тристайен апартамент за продажба в престижната сграда Mountain View Residence 2, разположена само на 50 метра от НСА.
Цена: 427 500
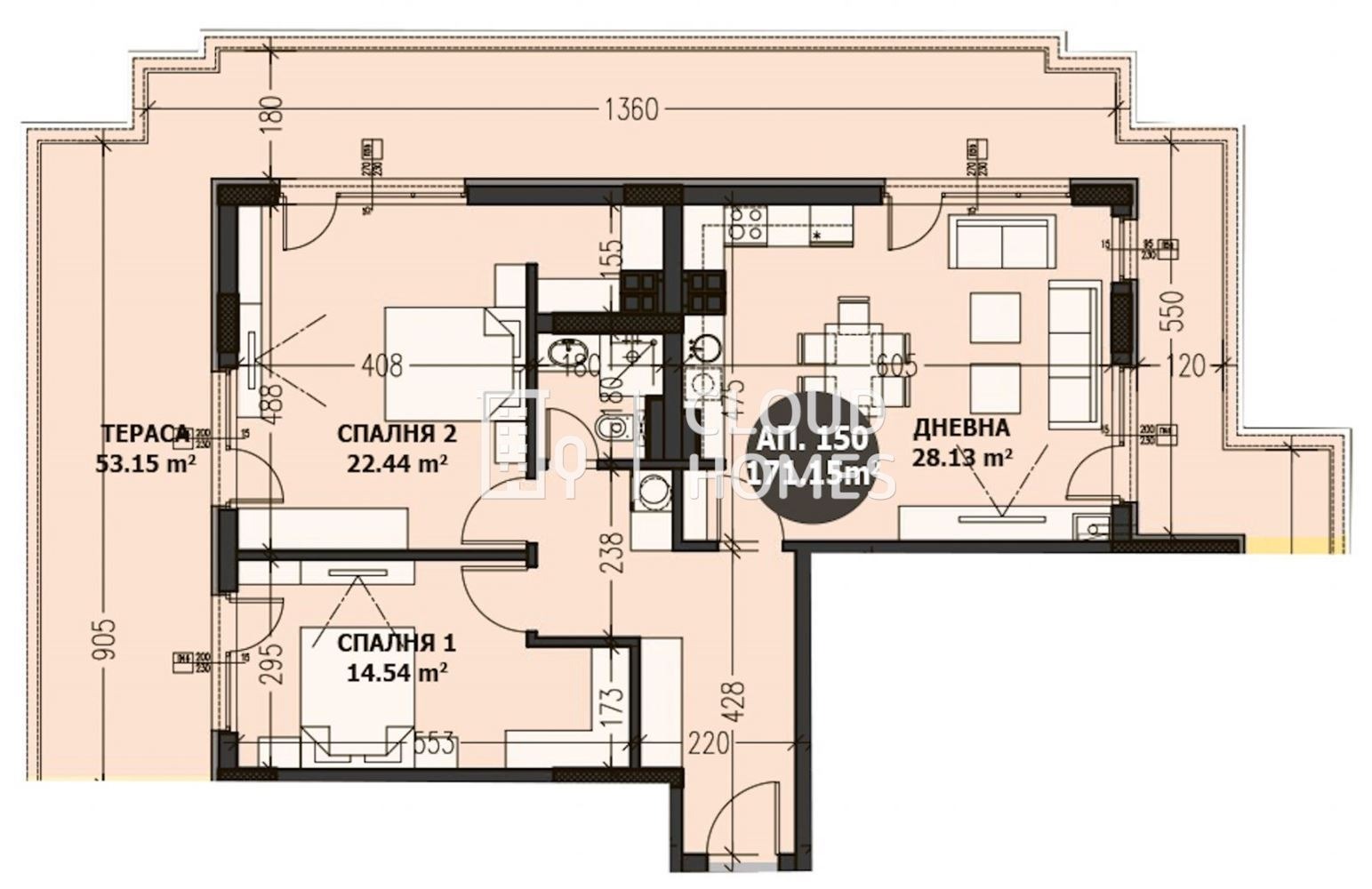
Площ: 171.15 m²
Тераса: 53.15 m²
Етаж: последен
Изложение: юг запад север
Акт 16
🏡 Основни предимства на имота
Последен етаж с много светлина и панорамно усещане
Високи тавани 3 м, които придават простор и луксозно усещане
Подово отопление за максимален комфорт
Импозантна тераса 53.15 m², подходяща за зона за отдих, барбекю или озеленяване
Функционално разпределение:
Просторна дневна 28.13 m²
Две големи спални: 22.44 m² и 14.54 m²
Два санитарни възела
Удобен коридор и правилни форми на помещенията
Сграда ново строителство с Акт 16
Локация с отлична инфраструктура до НСА, бъдеща метростанция, магазини, паркове и бърз достъп до Околовръстен път
📍 Локация
Комплексът Mountain View Residence 2 се намира в най-предпочитаната зона на кв. Малинова долина тиха улица, в непосредствена близост до НСА и в силно развиваща се среда с модерни нови сгради, зелени площи и удобства.
👩💼 Водещ брокер
Мартин Ников
📞 0877 530 403







