Повече за нас и нашите обяви на: WWW.SERDIKAIMOTI.COM
Сградата се намира в Люлин 8!
Директно от инвеститора! БЕЗ КОМИСИОНА!
Продаваме още два проекта в района на Люлин! Единият е на 200 метра от Уест мол.
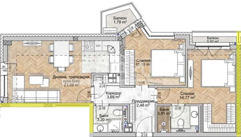
Сердика недвижими имоти предлага за продажба тристаен апартамент 96.28 кв.м с общите части, и застроена площ 83.54 кв.м, в новострояща се сграда в Люлин 8.
Състои се от: преддверие (2.48 кв.м), коридор (3.69 кв.м), дневна с кухненски бокс (21.59 кв.м), спалня (14.77 кв.м), втора спалня (11.10 кв.м), баня с тоалетна (3.91 кв.м), втора баня с тоалетна (3.20 кв.м), склад (0.61 кв.м) и един балок (1.79 кв.м).
Отопление ТЕЦ.
Метростанция Сливница е на 600 метра, а метристанция Люлин на 1,0 км. В близост до 56 СУ.
Реномиран и доказал се строител с множество завършени обекти.
Цената е с ДДС и не подлежи на промяна!
В сградата се предлагат и други двустайни, и тристайни апартаменти.
Налични подземни гаражи 31 000 евро.
Налични надземни паркоместа 18 500 евро.
Предлагаме безплатни консултации за ипотечно кредитиране и много други видове банкови услуги. С нас ще спестите време, средства и ще изберете банката с най изгодна за Вас оферта!
За повече информация се свържете с нас!







