Имоти Премиер представя на Вашето внимание просторен южен тристаен апартамент в кв. Изгрев
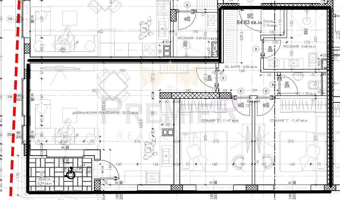
Апартаментът е с площ 99кв.м и се състои от: входно антре, просторен дневен тракт 30кв.м, две спални по 12кв.м, обща баня с тоалетна, втора отделна тоалетна, килер, тераса. Разпределението на имота го прави удобно и функционално семейно жилище три сервизни помещения и просторни стаи. Изложението на стаите е югозападно, което осигурява максимална осветеност и топлина в имота.
Намира се на трети етаж от общо 5 в новострояща се жилищна сграда. Възможност за закупуване на паркомясто.
Сградата се намира на 500 метра над бул. Христо Смирненски, перфектен асфалтов достъп. Доказан строител, залагащ на модерна визия и качествени устойчиви материали. Възможност за разсрочено плащане.
ПРЕДИМСТВА:
-статут апартамент
-правилни форми
-изцвло покрит без отстъпи
-разсрочено плащане
-модерна сграда
-южно изложение
-малка жилищна сграда
-опция за паркомясто
За повече информация и оглед не се колебайте да се обадите на посочения номер за връзка! Код: 366644







