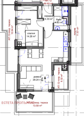
Двустаен апартамент в новострояща се сграда с възможност за преустройство в тристаен.Само на 1 минута от метростанция Красно село .
Разпределение:Просторна дневна с кухненски бокс, спалня, баня с тоалетна, коридор и тераса.Възможност за преустройство в тристаен, чрез обособяване на допълнителна спалня.
Изложение:Имотът е с южно, източно и западно изложение, много светъл и с панорамна гледка към планината.Жилището е ориентирано към вътрешния двор, което осигурява максимален комфорт, тишина и приятна гледка.
🔥 Предимства:
✨ Панорамна гледка към планината
✨ Просторна дневна с възможност за обособяване на втора спалня
✨ Модерен архитектурен дизайн
✨ Високо качество на строителството
✨ В близост до училища, детски градини и метростанция Красно село
✨ Гъвкава схема на плащане съобразена с Вас
✨ Отличен за живеене или инвестиция
📅 Срок на завършване:2027 г.
За повече информация тел:0896788621







