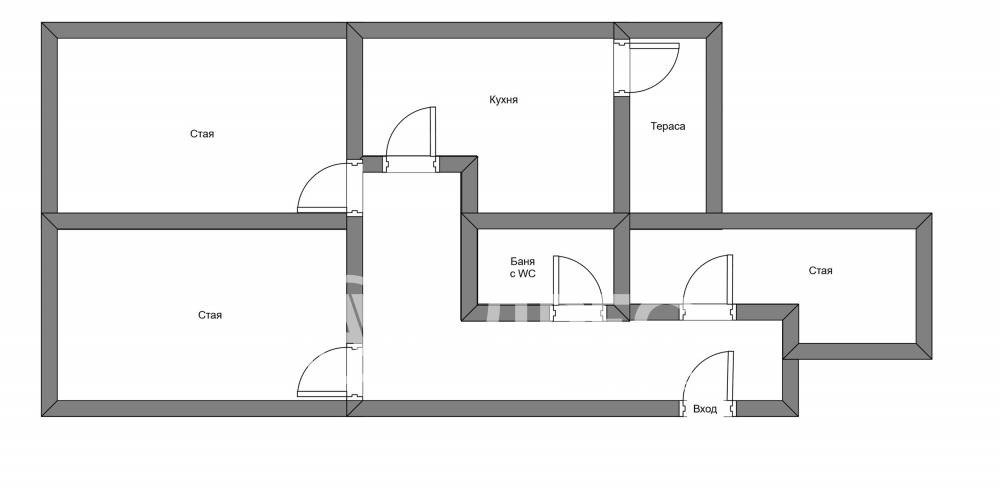
Тристаен апартамент,находящ се в централната градска част.
Състои се от коридор,хол,спалня,отделна кухня с тераса и още една стая,която се ползва като складово помещение.
Исторически център на стара София
Тухлена сграда
Удобна локация.Близост до магазини,училища,транспорт,метро.
Обади се сега и цитирай този код 667914







