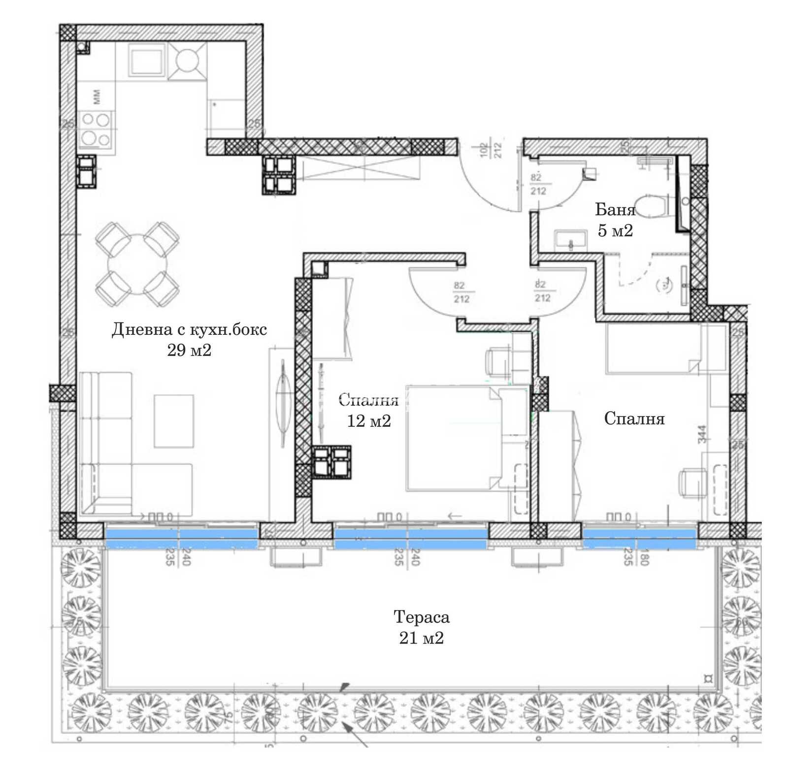
Оферта 68077 - СТРАХОТНА ЛОКАЦИЯ !!! НОВА ЛУКСОЗНА СГРАДА !!! Предлагаме на вашето внимание едно истинско бижу в централна градска част, а именно модерна сграда със собствен стил с изчистена визия, проектирана така, че да създаде максимален комфорт и уют за живеене. Панорамен тристаен апартамент, състои се от просторна дневна с трапезария и кухненски бокс 29кв.м., две самостоятелни спални, баня с тоалетна 5кв.м., входно антре с място за гардероб и една панорамна тераса. Сградата привлича вниманието със своята локация, разположена в един от най- предпочитаните райони, в близост до стадион Христо Ботев, Парк Лаута, ВСИ и множество големи Хипермаркети, бърз и лесен достъп към целия град. Проектът предвижда застрояване на просторни и панорамни жилища с избор на размер и етаж. Паркирането е решено с подземни гаражи и голям избор на външни и подземни паркоместа. Сградата привлича вниманието със своята локация, разположена в един от най желаните квартали с ниско етажно строителство. Сградата ще бъдат изпълнена с материали от най-висок клас на пазара в момента. Гъвкави схеми на разсрочено плащане в рамките на строителството, както и съдействие за банково кредитиране с изключително изгодни условия за клиенти на агенция Кондор. Строителната компания има опция за довършване на апартаментите до ключ.







