3MO Real Estate представя за продажба тристаен апартамент, разположен на втори етаж от новострояща се жилищна сграда с модерна фасада в ж.к. Дружба 2.
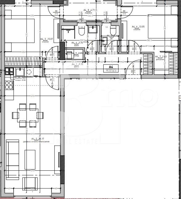
Общата площ на имота е 112,54 кв.м., а застроената е 95,32 кв.м.
Разпределението включва: просторна дневна с кухненски бокс с площ от 31 кв.м., две големи спални, баня с WC, отделно WC и склад.
Изложението му е югоизток и северозапад.
Отоплението е на ТЕЦ.
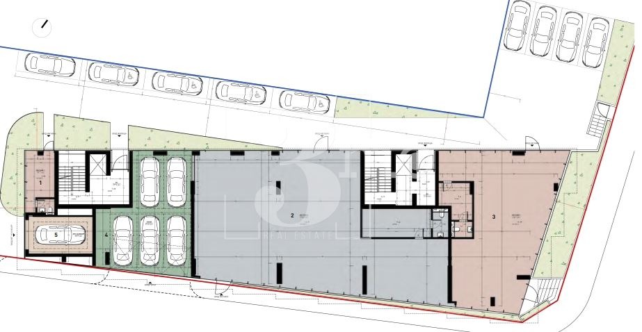
Възможностите за паркиране са с паркоместа на партера и две подземни нива с достъп чрез подемник. Цените на паркоместата са между 20 000 евро и 32 500 евро в зависимост от разположението.
Кварталът е с добра инфраструктура и транспортни връзки.
В близост се намират парк 'Езерото', хранителни магазини 'Т-Маркет', 'Кауфланд', 'Била', 'Фантастико'.
Транспортът е обезпечен с метростанция 'Дружба', автобуси 84, 88, 204, 404, 604 и N4, както и тролей 4.
Осигурен е бърз достъп до бул. Цариградско шосе , бул. Проф. Цветан Лазаров и 'Летище София'.
Имотите са подходящи както за млади семейства, така и за инвестиция с цел отдаване под наем.
Предлагат се и други типове апартаменти в сградата:
-2-стайни: от 76 до 89 кв.м | цени започващи от 146 966 евро
-3-стайни: от 112 до 119 кв.м | цени започващи от 219 775 евро
Посочените суми са спрямо стандартна схема на плащане, като са възможни и различни схеми с прекалкулиране на цените.
Посочената цена е с ДДС.
Оферта 2578







