ДИРЕКТНИ ПРОДАЖБИ ОТ ИНВЕСТИТОРА!!!
КУПУВАЧЪТ НЕ ДЪЛЖИ КОМИСИОННА!!!
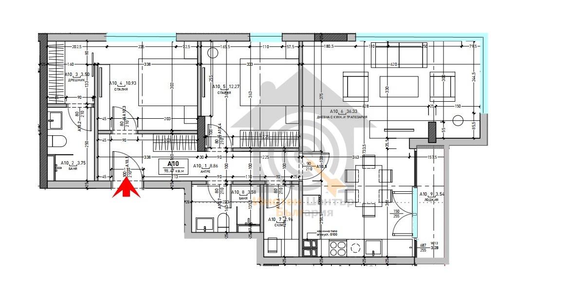
ИМОТЕН ЦЕНТЪР БЪЛГАРИЯ представя на вашето внимание 3стаен апартамент в сгада -МОДЕРНО НОВО СТОИТЕЛСТВО, ситуирана на бул.Цв.Лазаров ,с бърз и лесен достъп до Цaиградско шосе и Летище- София !!!
*в близост до МЕТРОСТАНЦИЯ ДРУЖБА, парк Езерото, Кауфланд, Била и Фантастико.
*акт14- до края на 2026г!!!
*Срок за завършване- 2027г.!!!
*модерна архитектура и висококачествени довършителни работи, съобразени с всички съвременни стандарти за енергийна ефективност и комфорт.
Предлагаме ви просторен, 3стаен апартамент,със ЗП-98,47м2
*изложение-З/С
*отопление на ТЕЦ
*Разполагаме и с други 3стайни апартаменти,с различни разпределения и на различни цени!!!
*С възможност за закупуване на наземни и подземни паркоместа,цени от 22500е!!!
отговорен брокер-Жени Давидова
Агенцията предлага също:
* Безплатни огледи на имота в удобно за вас време и СЛЕД ПОДПИСАН ПРОТОКОЛ ЗА ОГЛЕД!!!
* Съдействие при ипотечно кредитиране със 100% успеваемост!!!
* Ние ще ви насочим към кредитна институция,чиито условия на кредитиране са най-подходящи за вас.







