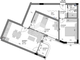
ЕКСКЛУЗИВНО! С АКТ 14! ТРИСТАЕН ЮЖЕН АПАРТАМЕНТ В ЖИЛИЩЕН КОМПЛЕКС ФЮЖЪН 1! ЕРА Варна Тренд предлага за продажба тристаен южен апартамент в новострояща се сграда Фюжън 1, в долната част на жк Владиславово. Имотът е със застроена площ 76,92 кв.м (88,56 кв.м с общите части), разположен на трети етаж от общо 8 етажа. Състои се от входно антре (11,1 кв.м), дневна с кухненски бокс (20,7 кв.м) и излаз на балкон (2,5 кв.м), две спални (11,5 кв.м и 13,3 кв.м), баня с тоалетна (3,2 кв.м) и килер (3 кв.м). Изложението е юг/югоизток.
Жилището се продава необзаведено. Ще бъде завършено до степен БДС. Отоплението ще бъде с електричество.
Тристайният апартамент се намира в долната част на жк Владиславово, в 8-етажна новострояща се сграда с асансьор, с издаден Акт 14, изпълнена с качествени материали, от доказал се на пазара инвеститор с множество построени сгради във Варна. Разрешение за ползаване (Акт 16) се очаква до 3 /три/ месеца от завършване на строежа и подписване на Акт обр.15 през 2026 г. Към жилището допълнително се закупуват два броя открити паркоместа, на обща цена 20 000 евро.
СТЕПЕН ЗА ЗАВЪРШЕНОСТ
Общи части на сградата: подови настилки и стъпала от гранитогрес или гранит; стени - декоративна мазилка; асансьор - ORONA;
Апартаменти: вътрешни стени - тухла с гипсова мазилка; тавани гипсокартон; под на стаи - циментова замазка; баня-тоалет: под циментова замазка, стени вароциментова мазилка; ел. инсталация завършена напълно до ключове, контакти, оптичен кабел до апартамент; В и К инсталации завършени до тапа; Изграждане на тръбни връзки за монтаж на климатици, на определени по архитектура места. Външна врата блиндирана с облечена декоративна каса; Прозорци: Висококачествена PVC дограма - 5 или 6 камерна с двойни стъклопакети ширина 32 мм, 6 мм четири сезона/4 мм бяло флоатно стъкло, подпрозоречни первази.
Оферта 0221879



