Схема на плащане 30 на 70, гъвкави схеми на плащане!
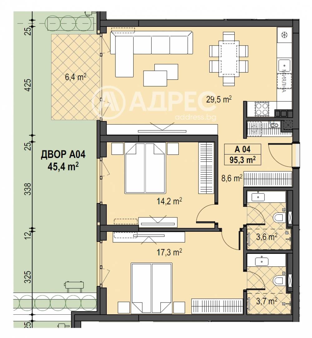
Прекрасен тристаен апартамент със западно изложение, позициониран на партерно ниво с РЗП-105,76м2, просторни стаи и разкошен прилежащ двор. Върху площ от 95,3м2 са разположени: дневна с кухненски бокс и трапезария-29,5м2, спалня -17,3м2 с 3,7м2 баня към нея, втора спалня-14,2 м2, втора баня с тоалетна-3,6м2, мокро помещение/склад, тераса-6,4м2 и прилежащ двор от 45,4м2. Налични ПМ и гаражи. ЦЕНАТА Е С ВКЛЮЧЕН ДДС.
Един модерен затворен комплекс в кв. Бояна, проектиран за хора и семейства с усет към качествения живот, търсещи баланса между природата и градската динамика. Локацията осигурява чист въздух, бърз достъп до центъра на столицата и подбрана среда с функционални и стилни жилища. Комплексът предлага нов начин на живот хармония между града и природата. Богато озеленяване, детска площадка, страхотни гледки. Функционално планирани жилища с прави линии и просторни помещения, създадени за реален комфорт и лесно обзавеждане. Впечатляващо малък процент общи части към апартаментите.
Стратегически разположен близо до автобусни линии и с бърз достъп до бул. България и Южната дъга, комплексът гарантира комфортно ежедневие и лесна мобилност. Непосредствената близост до Резиденция Бояна осигурява уникална комбинация от престиж и спокойна жилищна атмосфера едно от престижните и зелени места в района.
Луксозна сграда с модерна фасада - окачена, вентилируема от широкоформатен гранитогрес с изолация от каменна вата 12см. Подово отопление във всички стаи. Саморазливна калциево сулфатната замазка, даваща по-добро топлоотдаване. Опциите за отопление са газов котел, термопомпа или климатици. Настилки по терасите двоен под с гранитогресни плочи с дебелина 2см. Дограмата е висококачествен профил алуминий на етем в цвят 7016 по рал. Парапетите по терасите от алуминий, прахово боядисан. Асансьор със стъклена фасада. Общи части с широкоформатен гранитогрес по подовете.
Контролиран достъп и безопасност за семейството. Уредено и поддържано общо пространство. Без нежелан трафик и преминаващи хора.
Обади се сега и цитирай този код 674425







