БИЛДИНГ БОКС представя сграда, която се отличава с просторни жилища с перфектно разпределение, нисък процент общи части и високо качество на строителството, изпълнено от опитни професионалисти, които осигуряват сигурност и комфорт за бъдещите обитатели.
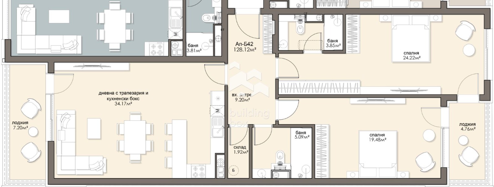
Имотът е тристаен и е със застроена площ от 128.12 кв.м, а разпределението му е както следва: входно антре, дневна с кухненски бокс, две спални, склад, две бани с тоалетна и две лоджии. Изложенията на имота са изток и запад. Намира се на 8-ми етаж от общо 9 етажа. Отоплението е на ТЕЦ, ще има изводи за климатици и бойлер.
Жилищният комплекс е изпъкващ сред сградите в района с иновативен дизайн, модерна фасада и перфектни архитектурни решения. Ще предостави комфорт за бъдещите си собственици и всички необходими удобства за днешния градски живот. При изграждането на проекта ще бъдат използвани висококачествени материали и технологии.
Сградата е след АКТ 14 и ще бъде завършена 2027г.
Местоположението на сградата е в непосредствена близост до спирки на градски транспорт, магазини и супермаркети, детски градини, училища, много зелени междублокови пространства и 'Западния парк'. Локацията има бърз излаз до Околовръстния път.
БИЛДИНГ БОКС предлага безплатна консултация и кредитно съдействие за финансиране на покупката на Вашия имот.
Оферта 19562







