Собственик продава тристаен преустроен в четиристаен без посредник и комисионна..Не обзаведен, апартамент с отлична локация до Южния парк!Перфектни документи.Цената не е твърда
-----
Мечтаете за уютен дом в центъра на София, сред зеленина и спокойствие, но в същото време близо до всичко?
Този апартамент в кв. Иван Вазов е точно това, което търсите! 🌿
✨ Основни акценти:
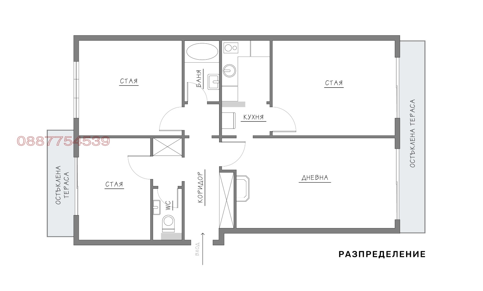
🔥 Просторен хол с големи френски прозорци и красива мраморна камина идеалното място за уютни вечери
🍳 Кухненски бокс с всички уреди готов за готвене и споделени моменти
🛏️ Три просторни спални/стаи, едната с френски прозорци и излаз към остъклен балкон с приятен изглед
🚿 Баня + отделна тоалетна, удобно разположени (тоалетната е до спалнята)
👕 Два големи вградени гардероба за повече пространство и ред
🌞 Два големи остъклени балкона с нова качествена дограма, плъзгащи се врати и настилка от плочки чудесни за сутрешно кафе или зимна градина
❄️ Климатик и радиатори готов за целогодишен комфорт
🏗️ Възможност за преустройство по ваш вкус!
📍 Локацията е без конкуренция!
На 3 минути от Южния парк, в тих и зелен район, но на крачка от всичко необходимо:
🛒 Супермаркет Фантастико , базар Иван Вазов, аптеки, паркинги
🚋 До спирка на трамвай и бърз достъп до центъра и НДК
🏫 В близост до училища, детски градини и 14 поликлиника
🌳 Много зелени площи и простор между сградите, вкл. голямо междублоково пространство
(Районът е с доказано по-чист въздух от други квартали в София)
🏠 Разположен на първи (
не приземен!
) етаж в качествен тухлен блок, строен за военни с масивна конструкция, солидна входна врата и чип достъп.
💡 Подходящ както за семейно жилище, така и за инвестиция с висока доходност.
📞 Свържете се с нас още днес и вижте този прекрасен имот на живо!
Вашият нов дом в Иван Вазов ви очаква ❤️
---
Цената е по договаряне!н 0887754539







