СХЕМА НА ПЛАЩАНЕ 10% НА ПРЕДВАРИТЕЛЕН ДОГОВОР И 90% НА АКТ 16. ВСИЧКИ ЦЕНИ СА С ВКЛЮЧЕН ДДС. СГРАДАТА Е ПРЕД АКТ 16.
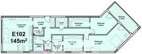
Тристаен апартамент със застроена площ от 145 кв.м. Разположен е на втори етаж. Състои се от: антре, дневна с кухненски бокс и трапезария 30.53 кв.м., две големи спални с гардеробни към тях, две бани с тоалетни, отделна тоалетна, склад и балкон, изложение Ю/С. Нова сграда в Полигона с апартаменти, паркоместа и място за паркиране на велосипеди. Богато разнообразие от апартаменти, тук всеки клиент ще намери жилището за което е мечтал. Обектът предлага разнообразни едностайни, двустайни, тристайни, многостайни жилища, офиси и паркоместа разположени на партер и две подземни нива. Отопление ТЕЦ. Високо качество на строителните дейности.
Намира се в близост до търговски център 'The Mall', бизнес сграда 'Мегапарк' и новите сгради на Министерски съвет. На два километра от зала 'Арена София' и новия комплекс 'Sofia Tech Park'. В района има и много други административни сгради.
Качествена сграда на реномиран строител. Обектът предлага разнообразни едностайни, двустайни, тристайни и многостайни жилища, офиси и паркоместа, разположени на партер и две подземни нива. Има място за паркиране на автомобили и място за паркиране на велосипеди. Отоплението е на ТЕЦ.
Перфектна локация както за живеене, така и за инвестиция. Високо качество на строителните дейности.
Обади се сега и цитирай този код 614145







