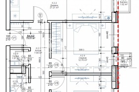
Тристаен апартамент на етаж четири с РЗП-87,85м2, ЗП-73,31м2 и разпределение: антре, дневна с кухненски бокс и трапезария-21,21м2, две спални-12,70 и 11,97м2, баня с тоалетна-3,57м2, отделна тоалетна, склад и два балкона. Отпление ГАЗ. Налични ПМ и гаражи. Цените са без включен ДДС.
Сграда с висококачествено и функционално изпълнение, проектирана с внимание към всеки детайл и с мисъл за комфорта на своите обитатели. Тя добавя истинска стойност към създаването на дом, в който дизайнът и удобството вървят ръка за ръка. Максимален комфорт, ефективност на пространството, елегантна и изчистена визия и френски прозорци. Просторни апартаменти с отлични вътрешни разпределения. Качествено строителство. Близост до магазини, училища и удобен достъп до Нов Български Университет. Тих и спокоен район с лесен достъп до Президент Линкълн..
Цените са крайни с включен ДДС.Отлична локация, район с изградена инфраструктура, Метростанция Овча купел детска градина, училища, магазни.
Висок клас строителство, реномиран инвеститор с множество завършени сгради.
Район с изградена инфраструктура.
Обади се сега и цитирай този код 675450







