БЕЗ КОМИСИОН за клиенти на агенцията!
Cozy Home Agency продава тристаен апартамент в новострояща се сграда в Младост 4
Район с изградена инфраструктура, богато озеленяване в междублоковото пространство и в близост до метростанция Бизнес парк.
В сградата се предлагат и други свободни 3-стайни или 4-стайни жилища.
Гъвкава схема на плащане!
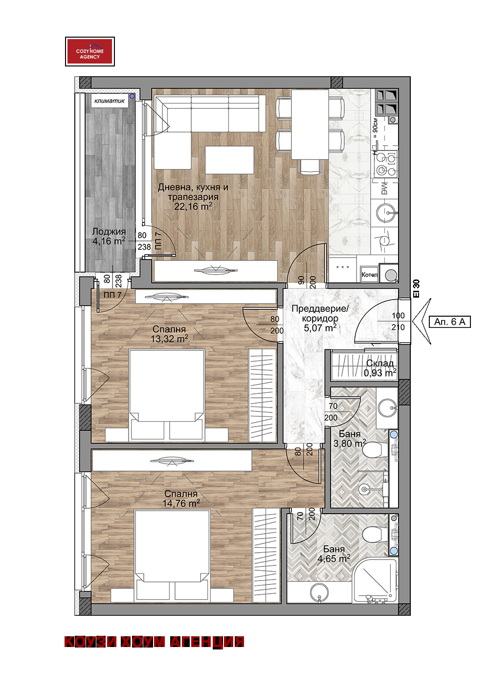
Приложена е схема на тристаен апартамент:
Етаж: 1 от 9
Площ: 93,50 кв.м
Разпределение:
-Входно антре
-Голяма дневна с кухненски бокс
-Две спални
-Две бани с тоалетни
-Склад
-Два балкона
Агенцията предлага безплатно съдействие за консултация с кредитен посредник за ипотечно финансиране.
Всички наши огледи се провеждат с протокол за оглед
Оферта 235
Свържете се с нас за да организираме Вашия оглед: 0882424017 Бирсен Шукриева
Посетете нашия сайт и разгледайте други подобни имоти: www.cozyhomeagency.com







