LUXIMMO FINEST ESTATES: www.luximmo.bg
Представяме за продажба тристаен апартамент със собствен двор в нова, атрактивна сграда с отлична локация в сърцето на новият квартал на Созопол 'Мисаря'. На 500 метра от плаж Хармани и в непосредствена близост до Стадиона, новата бъдеща болница, училище, магазини, ресторанти и други удобства.
В процес на строителство. Очакван Акт 16 - декември 2027 г.
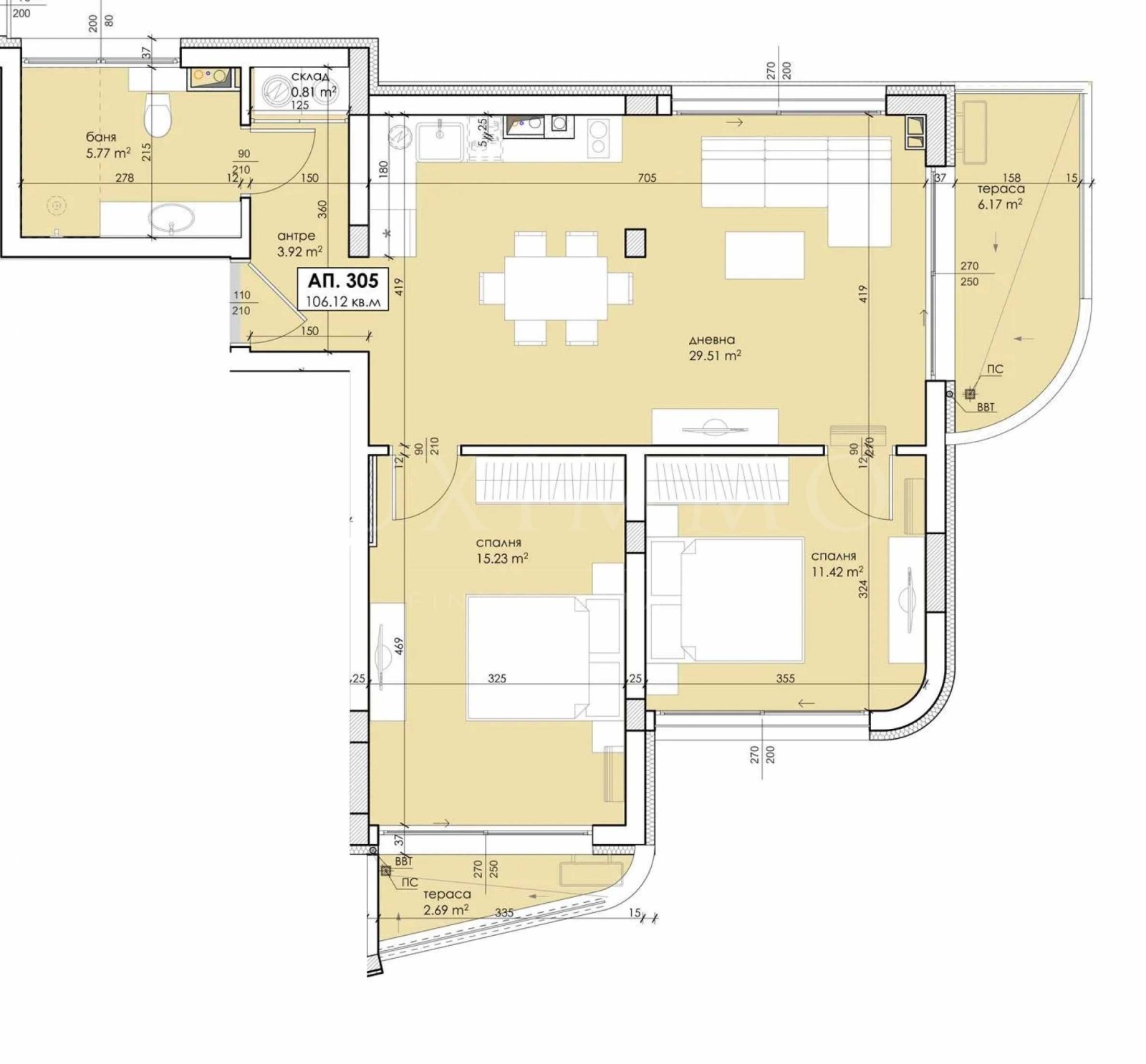
Имотът е разположен на трети етаж и предлага обща площ от 106,12 кв.м с изложение изток/север/юг.
Разпределение:
антре/коридор;
дневна с кухня;
две спални;
баня с тоалет;
две тераси.
Жилището се издава в степен на завършеност по БДС:
PVC дограма SALAMANDER 76;
подпрозоречни первази от естествен камък;
противовзломни апартаментни входни врати;
стени и тавани: варо-циментова мазилка с ъглови профили;
подове: циментова замазка;
балкон с фасадна мазилка и монтирани осветителни тела;
хидроизолация газопламъчна битумна 3mm Venus и гранитогрес;
парапет съгласно проект.
Има възможност за довършване 'до ключ', както и за мебелиране срещу допълнително заплащане.
Апартаментът е подходящ както за целогодишно живеене, така и за ваканционно ползване.
За сградата
Сградата е проектирана на 4 етажа с атрактивна визия, разполага с двустайни и тристайни жилища, и 18 паркоместа на надземно и подземно ниво. Входът на подземния гараж е проектиран с рампа през двора и улицата.
Технически характеристики:
стълбища и общи части: гранитогрес или камък;
стени и тавани: мазилка и латекс;
парапети по проект;
монтирани хидравлични асансьори;
покривна хидроизолация газопламъчна битумна 3mm Venus;
топлоизолация XPS 10 см.
циментова замазка;
под на паркоместа и гараж - шлайфан бетон;
фасадни външни стени: тухла 25см Wienerberger Тhermo;
топлоизолация по тухлени зидове с ЕРS 10см Baumit;
фасадна мрежа шпаклована с лепило Baumit;
структорна полимерна мазилка Baumit;
топлоизолация по ...
За повече информация свържете се с нас и цитирайте референтния номер на имота. Моля, кажете, че сте видeли обявата в този сайт.
Референтен номер: LXH-135760
Тел: 0882 836 629, 056 707 931
Отговорен брокер:инж. Валентина Ангелова







