Представяме Ви новия проект на доказал се строител с дългогодишен опит и стабилна репутация на пазара, разположен в един от най-бързо развиващите се райони -кв. Виница.
Сградата ще се състои от две самостоятелни тела с височина 5 и 6 етажа, проектирани с внимание към всеки детайл. В нея са предвидени разнообразни по големина и тип апартаменти от функционални едностайни до просторни многостайни жилища, отговарящи на нуждите както на млади семейства, така и на хора, търсещи спокойствие и уют.
Всички апартаменти ще се отличават с благоприятно изложение, оптимална осветеност и впечатляваща морска панорама, осигуряваща усещане за простор и хармония.
В сутерена на сградата е предвиден подземен паркинг за максимално удобство и сигурност на живущите. Допълнително, в дворното пространство ще бъдат изградени външни паркоместа и зелени зони, създаващи комфортна и приятна среда за обитаване.
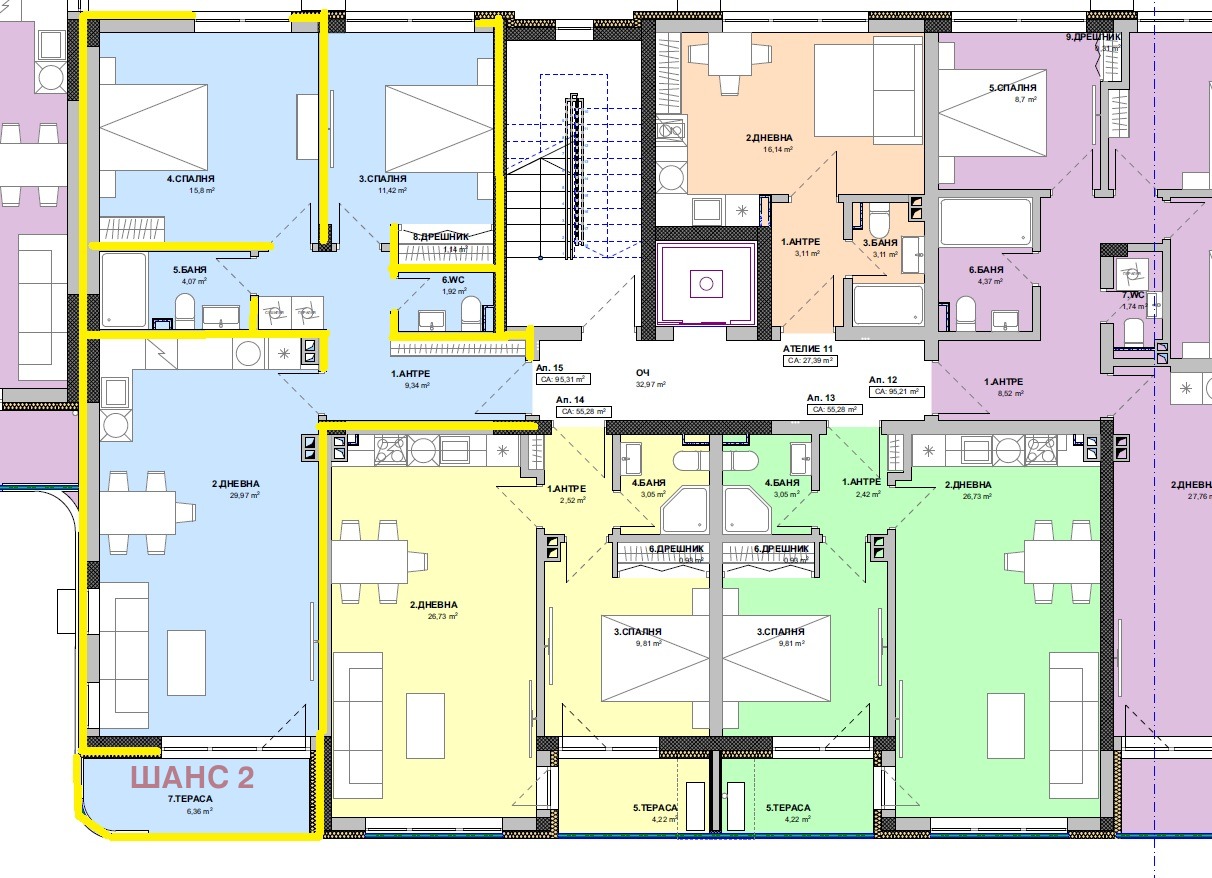
Ап. 15 е разположен във вх.А, на 4-ти етаж (не е последен) с хубава морска гледка. Застроената му площ е 95 кв.м, обща площ (с общи части) 106 кв.м. Разпределението е: просторна всекидневна с кухненска част 30 кв.м с излаз на тераса 6 кв.м, спалня 16 кв.м, втора спалня 12 кв.м, баня с тоалет, тоалет и входно антре.
Апартаментът се отличава с удобно вътрешно разпределение, което осугурява комфорт и уют. Големите прозорци в дневната осигуряват естествена светлина и директна гледка към морето.
Проектът съчетава модерна архитектура, висококачествени материали и функционални разпределения, гарантиращи дългосрочна стойност и високо качество на живот.







