Компания `Х` представя на Вашето внимание тристаен апартамент в Коматево.
МЕСТОПОЛОЖЕНИЕ: Коматево е спокоен и зелен квартал на Пловдив, подходящ за семейства и хора, които търсят тишина и повече пространство. Районът се развива активно с ново строителство и подобрена инфраструктура, включително нови пътища, канализация и спортни площадки. В същото време предлага бърз достъп до центъра на града, което го прави удобен и перспективен за покупка на жилище.
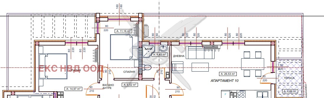
РАЗПРЕДЕЛЕНИЕ: Разполага с площ от 100 кв.м., разгърната в следното функционално разпределение: две спални, дневна с трапезария и кухня, тераса, две бани с тоалетна, входно антре.
СЪСТОЯНИЕ: Жилището е част от новострояща се сграда с модерна архитектура и качествено строителство, предлагаща удобства от ново поколение. Чудесна възможност новите собственици да създадат своя мечтан дом по собствен вкус.
ЕКСКЛУЗИВНО ПРЕДЛОЖЕНИЕ!
Заповядайте да Ви го покажем. Използвайки нашите услуги Вие ще превърнете закупуването на новия си дом в едно приятно изживяване, ще получите персонален консултант, съдействие при кандидатстване за кредит от всички банки в България, интериорни дизайнери и екип, който да се погрижи за нужните документи по Вашата сделка. На Ваше разположение сме всеки ден, от понеделник до неделя от 09:00 до 20:00ч. Възползвайте се от безплатна консултация в наш офис, където ще ви спестим време и ще ви запознаем с всички актуални имоти в България, отговарящи на Вашето търсене. Свържете се с нас на 0887779990 или на 0884060990 и цитирайте кода към имота: 1223-34930







