International Real Estates предлага на вашето внимание !
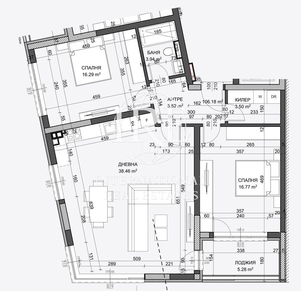
Изключително просторно жилище с югозападно изложение. Състоящо се от две просторни спални, голяма и обширна всекидневна с площ почти 40 квадратни метра, килер, баня,тераса и на партерно ниво избено помещение 7м2.
Жилището се издава по БДС. Има опция за закупуване на паркомясто .
Осми етаж от девет, с асансьор в нова тухлена сграда която е пред Акт 15.
Комуникативна локация с множество автобусни линии, училища, супермаркети и парк Възраждане в непосредствена близост.
За повече информация и организиране на оглед, моля свържете се с нас на посочения телефон и цитирайте код на обявата: 26
International Real Estate предлага пълно съдействие по целия процес на покупко-продажбата съдействаме при кредитиране, извършваме проверка на имота и работим в партньорство с всички водещи банкови институции в страната.
Ще бъдем до Вас на всяка стъпка по пътя към Вашия нов дом!







