Титан Пропъртис - офис бул.България има удоволствието да Ви представи тристаен апартамент в кв. Малинова долина - комуникативно място, в близост, спирки на градски транспорт. Бърз и лесен достъп до булевард Симеоновско шосе и Околовръстен път.
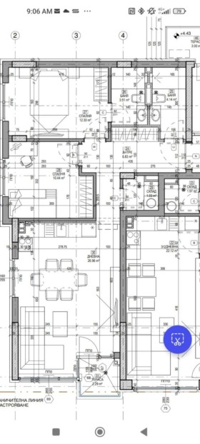
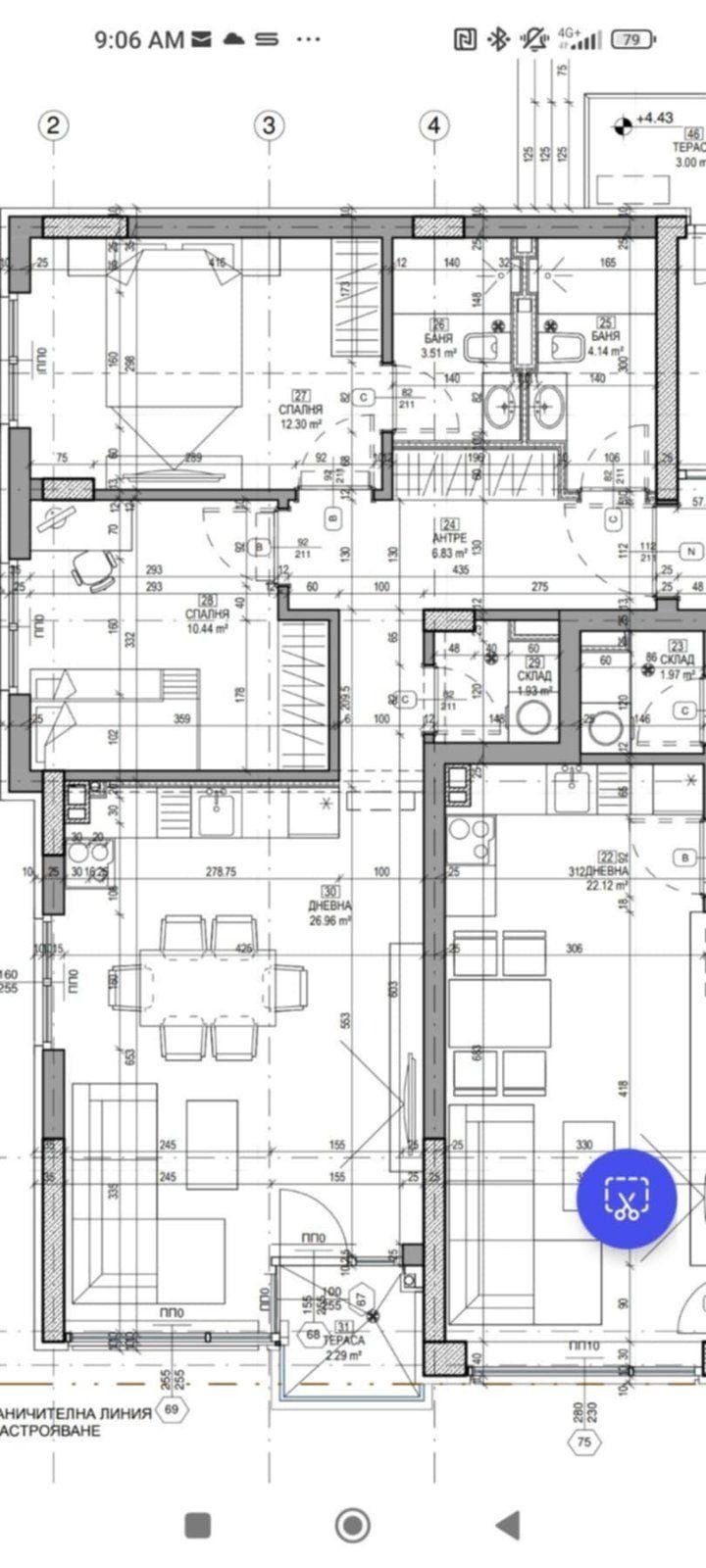
Апартаментът е разположен на трети етаж от четири етажа. Сградата е на етап Акт 15 и се очаква да бъде въведена в експлоатация (акт 16) края на 2026г. Имотът разполага с площ от 97 кв.м. Разпределението както следва е: антре, хол с кухненски бокс , две спални, две бани с тоалетни,склад и тераса. Изложението е запад/юг. Отоплението е предвидено да бъде на ток. Жилището се предлага на шпакловка и замазка, предоставяйки възможност за персонализация на интериора. В обявената цена е включено паркомясто,гараж и мазе.
. За повече информация или оглед на това и други предложения, моля, свържете се с нас на посочения телефон. Реф. Номер: 2091006
Виж всички обяви в titanteam.bazar.bg или тук







