Отговорен брокер: Антония Данчева
Тристаен апартамент в новострояща се сграда в кв. Железник. В близост до детска градина, детска площадка, автобусна спирка, училище, аптека, поща. Апартаментът е подходящ както за живеене, така и за инвестиция. Сградата е в процес на строителство с очакван Акт 16 през 2026 г.
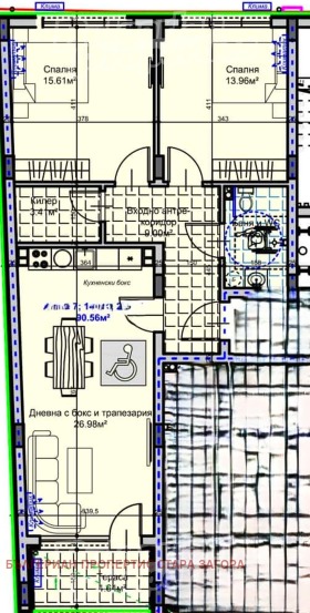
Апартаментът (обща площ 122 кв. м.) се намира се на 2/7 етаж, с изложение север/юг и следното разпределение:
коридор
дневна-трапезария с кухненски бокс
две спални
баня-тоалетна
тераса с гледка към квартала
Имотът се предлага за продажба по БДС - PVC дограма, външна изолация и масивни стени на шпакловка и замазка, блиндирана входна врата.
Сградата е на 7 етажа, отличава се със съвременен дизайн, стилна фасада, висококачествено строителство, луксозни общи части, хидравличен асансьор, контролиран достъп, функционални и удобни разпределения на вътрешното пространство на жилищата. Висококачественото ново строителство включва железобетонна конструкция, монолитна зидария с висок клас тухли, както и топлоизолационна система и висок клас петкамерна PVC дограма.
Оглед на имота
Можем да организираме оглед на имота спрямо нашия график и възможностите за достъп до него. Заявете вашето желание за оглед, като се свържете с отговорния за офертата брокер по имейл или телефон.
Резервация на имота
Имотът може да бъде резервиран и свален от продажба със заплащане на депозит, след което се прекратява провеждането на огледи с други купувачи и започва подготовка на документите за сключване на предварителен и окончателен договор. Свържете се с отговорния брокер за подробна информация относно процедурата на покупка и начините за плащане.
Жилищен кредит
Ние си партнираме с водещите български банки и можем да ви свържем с техните консултанти за информация и кандидатстване за кредит.
...
Виж всички обяви в stzbulprop.bazar.bg или тук
        
       
         
         
         
         
         
         
         
             
             
             
             
             
             
            






