Открийте мястото, където ще се чувствате у дома от първия момент.
Титан Пропъртис с радост предлага на Вашето внимание тристаен апартамент за продажба в кв. Възраждане 3, Варна.
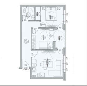
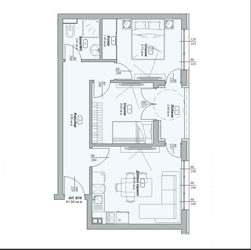
Жилището с площ 71 кв.м е разположено на 3-ти етаж в новострояща се четириетажна сграда.
Функционалното разпределение включва коридор, баня с тоалетна, две спални, дневен тракт, лоджия и килер. Имотът се предлага в степен на завършеност на шпакловка и замазка.
Изложение: Запад/Юг
Допълнителна информация: Модерна четириетажна жилищна сграда с изчистени линии и елегантно съчетание на цветове, които подчертават съвременния ? характер. Архитектурният облик е хармонично балансиран между функционалност и естетика, с акцент върху просторните прозорци, осигуряващи изобилие от естествена светлина и връзка с околната среда. Балконите, към всеки апартамент, създават усещане за откритост и предлагат приятна гледка към зелени площи и поддържан двор. Пространствата са проектирани с мисъл за комфорт и удобство, превръщайки сградата в място, където модерният начин на живот се съчетава с уют и спокойствие.
Сградата се намира в тихата и спокойна местност Пчелина във Варна, в близост до природа и с удобен достъп до града.
Сградата е с южно изложение, което осигурява много слънце и естествена светлина през целия ден.
Фасадата е модерна и стилна, с комбинация от бяло, тъмно сиво и бежово, допълнена от големи прозорци и балкони с метални парапети.
Около сградата има красиво оформени зелени площи с дървета, храсти и цветни акценти, които създават уютна атмосфера.
"С нас, вашето търсене на имот завършва с усмивка."
За оглед на това и други атрактивни предложения, не се колебайте да ни потърсите на посочения телефон или да ни изпратите данните си чрез формата за запитване на сайта.
Реф. номер: 2100212







